4 bedroom detached house
The Lenham is a stylish four-bedroom detached home designed for modern family living.
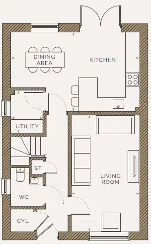
On the ground floor, the open-plan kitchen/dining area creates a bright and welcoming hub, with a separate utility room for added convenience. A family lounge provides the perfect space to relax, while a downstairs WC completes the layout.
Upstairs, there are four bedrooms, including a principal bedroom with its own en-suite. A separate family bathroom serves the remaining rooms.
Property Features:
Details added: 15/11/2025
Are we missing any purchase information? Click here to contact the developer













