2 bedroom terraced house
The Ash 2 is our most popular two-bedroom home, ideal for first time buyers or those looking to downsize and stay in one of the best locations in Aberdeen.
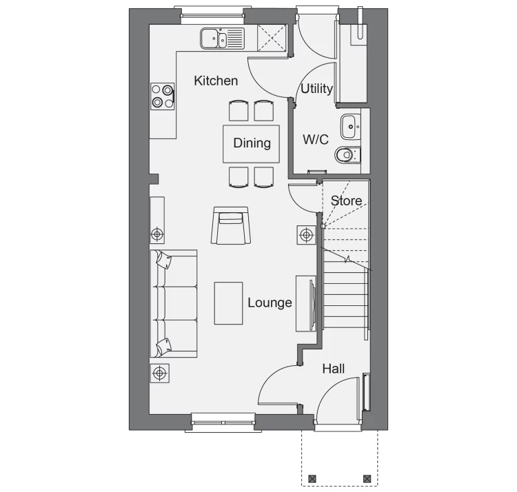
Downstairs, the property features a dual aspect open plan lounge- dining and kitchen, there is a very handy, large under stairs cupboard for all your storage needs. A door from the kitchen leads through to a separate utility room, which has additional worktop space and room for 2 appliances, which in turns leads to the back garden and the WC.
Upstairs, there are two generous double bedrooms, the main one with fitted wardrobes included and there is a contemporary bathroom which has shower over the bath and chrome towel rail included.
Outside the rear garden is fully enclosed & will be seeded for you providing a safe area for pets or children to play. There is a patio area, ideal for entertaining or relaxing on a sunny day. The front garden is turfed and there are 2 parking spaces for the property.













