3 bedroom end terraced house
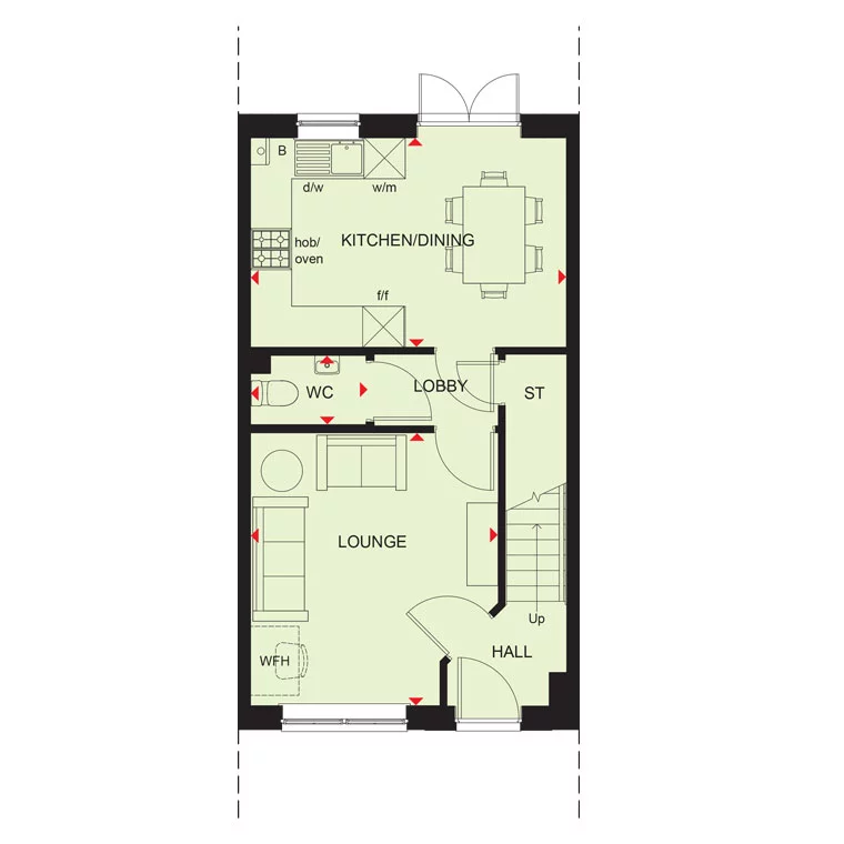
5% DEPOSIT BOOST | The OPEN-PLAN kitchen with dining space has FRENCH DOORS leading out to the LARGE REAR GARDEN. The home also features a SPACIOUS LOUNGE for all of the family to relax in. Upstairs the main bedroom has an EN SUITE shower room and there is a further double bedroom, a single bedroom and a family bathroom. Plot 31 | The Ellerton | Monkton Gardens, Hebburn | Barratt Homes. PEACE OF MIND WHEN BUYING NEW: ENERGY SAVING technologies included, meaning you could enjoy lower bills. Need help with your mortgage? We can put you in touch with a New Build MORTGAGE BROKER.
- 12,490 deposit boost
- Large rear garden
- Stone built end-terrace home
- Parking for 2 cars
- Open-plan kitchen
- French doors to rear garden
- En suite to main bedroom
- Council Tax: Please confirm the council tax band with Barratt Homes
- Tenure: Please confirm if this is a freehold or leasehold property with Barratt Homes























