5 bedroom detached house
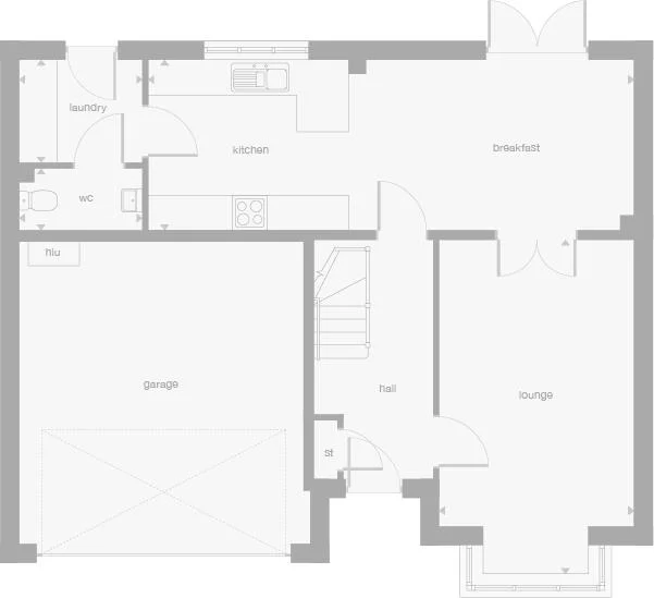
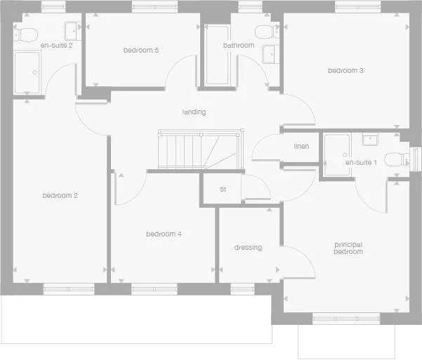
The Alford offers instant appeal with double doors opening to combine the lounge, dining room and kitchen into a single space from bay window to French doors, an unforgettable setting for social gatherings. Sharing the downstairs is a handy laundry room and downstairs WC. The double garage is also ideal for storing tools, sporting equipment and garden furniture. The gallery landing upstairs leads to five bedrooms, one of which is easily adaptable to suit home working. Two of the five bedrooms en-suite showers, while a dressing area to the principal bedroom adds a luxury touch to this impressive home. Plot 43 Tenure: Freehold Length of lease: N/A Annual ground rent amount (£): N/A Ground rent review period (year/month): N/A Annual service charge amount (£): 234.50 Service charge review period (year/month): Yearly Council tax band (England, Wales and Scotland): TBC Reservation fee (£): 500 For more information about the optional extras available in our new homes, please visit the Miller Homes website. Plot 51 Tenure: Freehold Length of lease: N/A Annual ground rent amount (£): N/A Ground rent review period (year/month): N/A Annual service charge amount (£): 234.50 Service charge review period (year/month): Yearly Council tax band (England, Wales and Scotland): TBC Reservation fee (£): 500 For more information about the optional extras available in our new homes, please visit the Miller Homes website.
- Feature square bay window
- Open plan breakfasting kitchen
- French doors to private garden
- Separate laundry room
- Principal bedroom with en-suite
- Principal bedroom dressing room
- Bedroom 2 en-suite
- Flexible home office space
- 10-year NHBC warranty
- Energy-efficient
- Council Tax: Please confirm the council tax band with Miller Homes
- Tenure: Please confirm if this is a freehold or leasehold property with Miller Homes

























