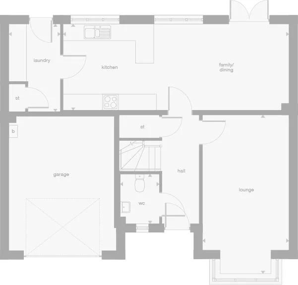
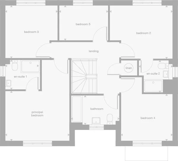
5 bedroom detached house
Step into this impressive five-bedroom family home, thoughtfully designed for modern living. At its heart is a bright open-plan kitchen, dining and family area, with french doors opening onto the garden – ideal for both everyday living and entertaining. A separate laundry room keeps practical tasks neatly tucked away, while the bay-windowed lounge provides a stylish space to relax. Upstairs, the five bedrooms offer excellent flexibility for family life, guests or home working, served by a contemporary family bathroom. The principal bedroom features a luxurious en-suite, complemented by a second en-suite bedroom for added convenience. Spacious, versatile and elegantly finished, this home perfectly balances comfort and modern style. Plot 18 Tenure: Freehold Length of lease: N/A Annual ground rent amount (£): N/A Ground rent review period (year/month): N/A Annual service charge amount (£): 234.50 Service charge review period (year/month): Yearly Council tax band (England, Wales and Scotland): TBC Reservation fee (£): 500 For more information about the optional extras available in our new homes, please visit the Miller Homes website. Plot 42 Tenure: Freehold Length of lease: N/A Annual ground rent amount (£): N/A Ground rent review period (year/month): N/A Annual service charge amount (£): 234.50 Service charge review period (year/month): Yearly Council tax band (England, Wales and Scotland): TBC Reservation fee (£): 500 For more information about the optional extras available in our new homes, please visit the Miller Homes website. Plot 45 Tenure: Freehold Length of lease: N/A Annual ground rent amount (£): N/A Ground rent review period (year/month): N/A Annual service charge amount (£): 234.50 Service charge review period (year/month): Yearly Council tax band (England, Wales and Scotland): TBC Reservation fee (£): 500 For more information about the optional extras available in our new homes, please visit the Miller Homes website. Plot 46 Tenure: Freehold Length of lease: N/A Annual ground rent amount (£): N/A Ground rent review period (year/month): N/A Annual service charge amount (£): 234.50 Service charge review period (year/month): Yearly Council tax band (England, Wales and Scotland): TBC Reservation fee (£): 500 For more information about the optional extras available in our new homes, please visit the Miller Homes website. Plot 85 Tenure: Freehold Length of lease: N/A Annual ground rent amount (£): N/A Ground rent review period (year/month): N/A Annual service charge amount (£): 234.50 Service charge review period (year/month): Yearly Council tax band (England, Wales and Scotland): TBC Reservation fee (£): 500 For more information about the optional extras available in our new homes, please visit the Miller Homes website.
- Open plan kitchen family dining area
- Separate lounge
- French doors to rear garden
- Flexible space for home office
- Principal bedroom with en-suite
- Bedroom 2 with en-suite
- Downstairs WC
- Handy storage
- Laundry
- Extended garage
- Council Tax: Please confirm the council tax band with Miller Homes
- Tenure: Please confirm if this is a freehold or leasehold property with Miller Homes






















