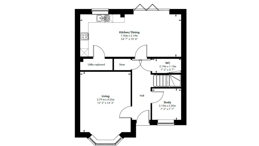
4 bedroom detached house
Room for everyone, space for everything. With four bedrooms, a separate snug or study and a light-filled kitchen made for family life, the Whittington is designed to adapt and grow with you.


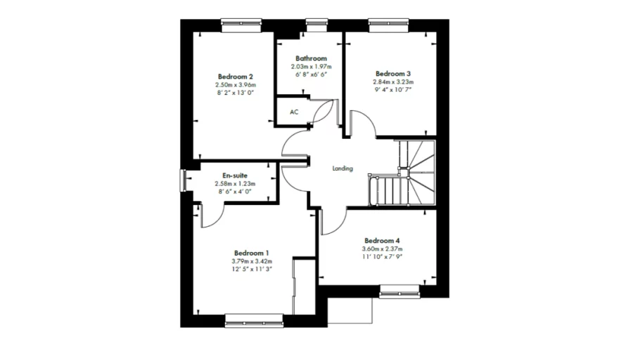
4 bedroom detached house
Room for everyone, space for everything. With four bedrooms, a separate snug or study and a light-filled kitchen made for family life, the Whittington is designed to adapt and grow with you.






Welcome to Oakwood – a place to put down roots
Tucked away in the charming village of Stoke Golding, Oakwood is an exclusive development of 55 beautifully crafted new homes. With its mix of 1, 2, 3, 4 and 5-bedroom homes, this thoughtfully designed collection offers something for everyone – whether you’re a first-time buyer, family or simply looking for a modern new home with more community. Surrounded by open countryside and peaceful canal walks, yet within easy reach of Hinckley, Nuneaton, Leicester, Coventry, Birmingham and London, Oakwood delivers the perfect balance of rural calm and urban convenience.
