4 Qty-bedrooms
From £609,995

The Sibson, Willowbank Meadows, GL20 8NJ

Spinner
Spinner

Property Details Green-arrow

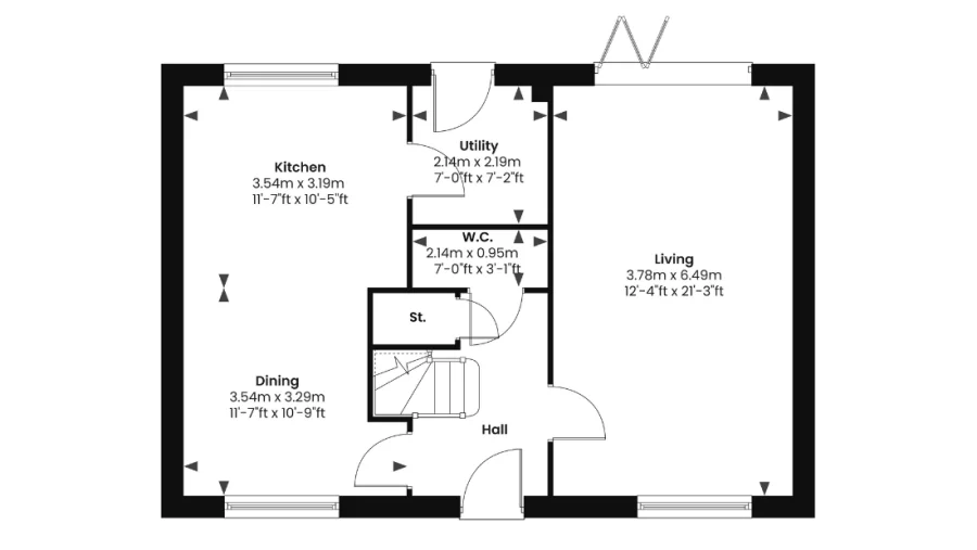
4 bedroom detached house

The Sibson is a beautifully designed four-bedroom detached home offering an open-plan kitchen, separate utility, a bright lounge with bi-fold doors to the garden and generous bedrooms – complete with a garage and two parking spaces.

Details added: 17/10/2025
Are we missing any purchase information? Click here to contact the developer

Floorplans Green-arrow

Floorplan:

Floorplan 900 3489531 1760703465

Floorplan:

Floorplan 900 3489536 1760703466

Map & Street view Green-arrow

Development Info Green-arrow

Willowbank Meadows

Alderton
GL20 8NJ

View Full development

Tucked away in the heart of Alderton, a charming village at the foot of the Cotswolds, Willowbank Meadows is a thoughtfully designed collection of 48 new homes celebrating the beauty of rural living. Surrounded by open countryside and embraced by a strong village spirit, this is a place where peace, connection and community flourish.

With a range of 3 and 4-bedroom homes available for private sale, Willowbank Meadows has been created with all kinds of homeowners in mind – from first-time buyers and growing families to those looking to downsize and enjoy a simpler way of life. Whether you’re starting out or settling down, you’ll feel right at home here.

What’s here for you?
48 beautifully crafted, energy-efficient homes
A selection of 3 and 4-bedroom homes available for private sale
Idyllic rural village setting with scenic views
Welcoming, close-knit local community
Just 10 minutes from Winchcombe

Details added: 17/10/2025
Are we missing any purchase information? Click here to contact the developer

Mortgage Calculator Green-arrow


Disclaimer: The information contained in this site is for general guidance on matters of interest only and New Homes Place Limited holds no warranty for the accuracy of any development or property description or any linked or associated information. Computer generated images and photography are indicative and are intended for illustrative purposes only. They may not represent the actual furnishing and finishes of a property or development.
Spinner-transparent-turq