3 bedroom house
A stylish three bedroom home designed for comfort and practicality. The open plan kitchen dining area creates a sociable space for family meals and is complete with French doors leading to the rear garden. The spacious living room benefits from a dual aspect making it bright and airy with lots of natural light. There is a downstairs WC for convenience. The first floor features a generous master with en suite. Two further bedrooms share the modern family bathroom. The Ripon has been thoughtfully designed with modern amenities making it an ideal choice for families and professionals alike.
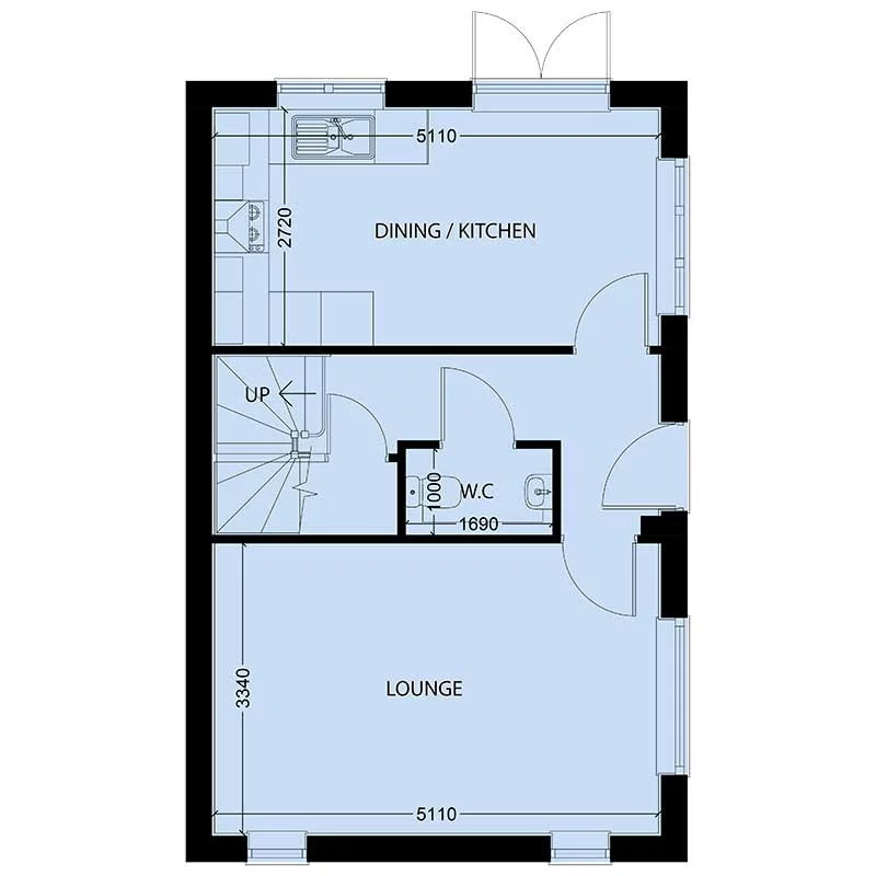
Kitchen/Dining
5110mm x 2720mm
Lounge
5110mm x 3340mm
WC
1690mm x 1000mm
Bedroom 1
5110mm x 3340mm
En-suite
1960mm x 1420mm
Bedroom 2
2720mm x 2810mm
Bedroom 3
3520mm x 2210mm
Bathroom
2210mm x 1900mm













