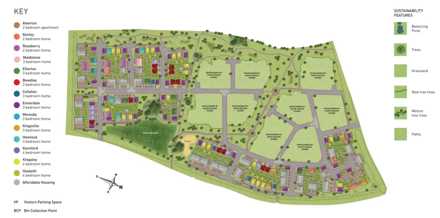
The Pearls
Stourport on Severn
DY13 0TT
Set in the sought-after town of Stourport, The Pearls offers a superb selection of 2, 3 & 4 bedroom homes in a beautiful location close to the Wyre Forest District. Less than two miles away from Stourport itself, this brand-new community opens the door to a wide range of essential and entertainment amenities, as well as convenient travel to Kidderminster and Worcester. What3words location – curls.member.freshest
































