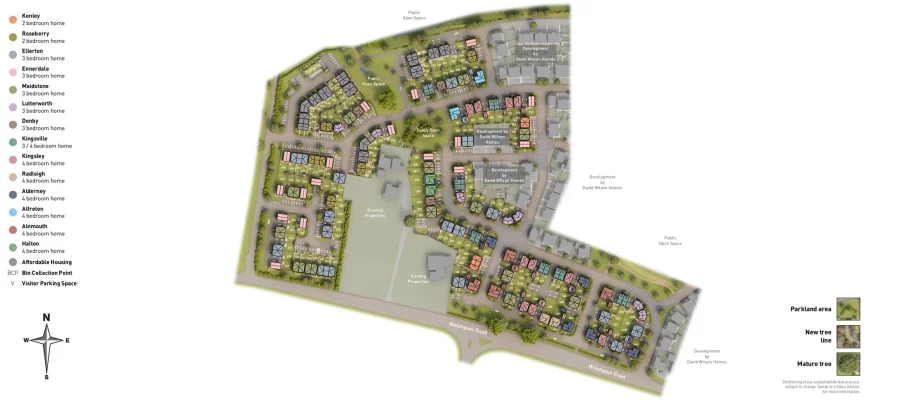
The Lilies
Bicton Heath
Shrewsbury
SY3 8HA
On the western outskirts of Shrewsbury, The Lilies brings you brand-new two, three and four bedroom homes. Enjoy being within easy reach to high street shops, cafes, restaurants and leisure amenities, all just over three miles away, whilst families with young children are in walking distance of ‘Outstanding’ rated schooling. Thinking of commuting? Nearby the A458, A5 and M54 bring you closer to the Midlands and beyond the Welsh border. What3words location – loaf.steamed.engulfing






























