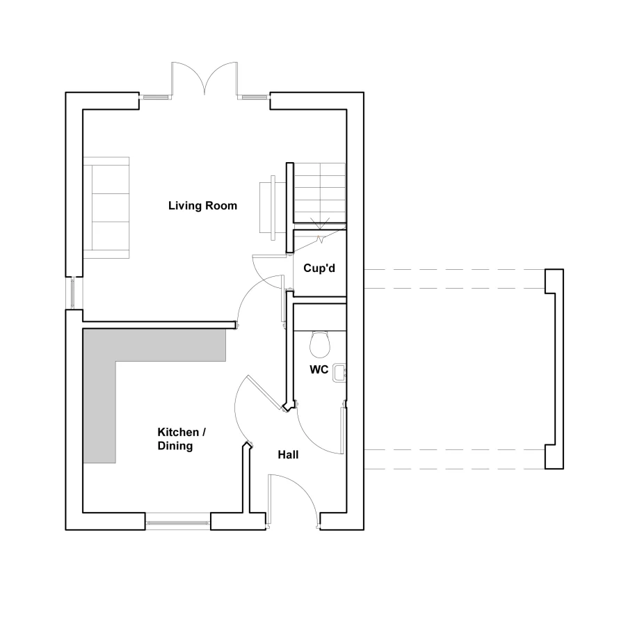
3 bedroom semi detached house
Designed for modern living, The Earn is a three-bedroom home that combines stylish design with practical, spacious accommodation. Perfect for first-time buyers or growing families, it offers everything you need to settle in and feel at home from day one.
Property Features:
Details added: 23/04/2026
Are we missing any purchase information? Click here to contact the developer













