3 bedroom detached house
Detached
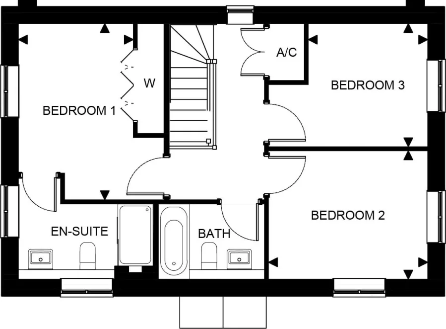
3 bedrooms
Kitchen/dining room
Separate utility
Bosch integrated appliances
Living room
En-suite to bedroom 1
Fitted wardrobes to bedroom 1
Carpets included throughout
Detached garage
Landscaped front garden with turf to rear garden
Electric vehicle charging point
Ultra-fast fibre broadband available
Property Features:
Details added: 19/12/2025
Are we missing any purchase information? Click here to contact the developer













