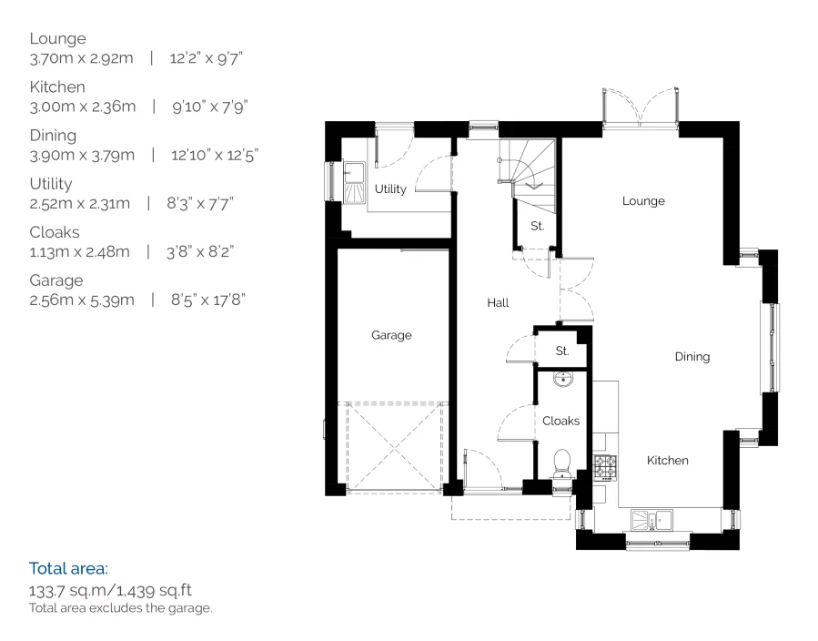
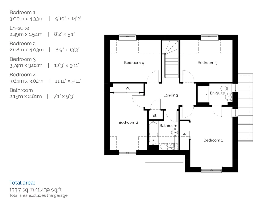
4 bedroom detached house
This spacious 4 bedroom detached villa comprises of an open-plan lounge/kitchen/dining room with French Doors to the rear garden, downstairs WC, Utility & Single garage downstairs. Main bathroom upstairs, bedroom 1 with en-suite and built-in wardrobe
Property Features:
Details added: 19/11/2025
Are we missing any purchase information? Click here to contact the developer













