2 bedroom apartment
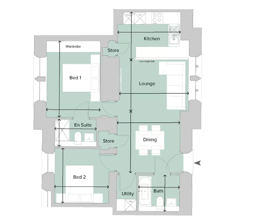
Apartment OA01 is a beautifully designed dual-aspect two-bedroom home located on the lower ground floor within this prestigious development. The heart of the home is a spacious open-plan kitchen, dining, and lounge area, perfect for modern living. The contemporary kitchen features integrated appliances and ample storage, creating an elegant yet practical space for cooking and entertaining. Large windows invite natural light and provide views across the private landscaped gardens.
The principal bedroom includes fitted wardrobes and a sleek en-suite bathroom with a shower. A second well-proportioned bedroom is served by a stylish family bathroom with a bath, ideal for guests or family members. Additional conveniences include a dedicated utility space and a store cupboard. Beyond the apartment, residents can enjoy beautifully landscaped gardens and is just moments from local amenities, boutique shops, and vibrant cafés. Excellent transport links make commuting effortless, while nearby green spaces offer the perfect escape for relaxation and leisure.
















