New homes in Leicestershire

4 Qty-bedrooms
From £690,000

Sycamore House , Fosbrooke View , Leicestershire, LE67 2AB

Spinner
Spinner

Property Details Green-arrow

4 bedroom house

A SERENE 4-BEDROOM HOME OFFERING QUIET, GREEN BACKDROP LIVING

Elegant four-bedroom homes that combine stylish open-plan living with thoughtful touches throughout
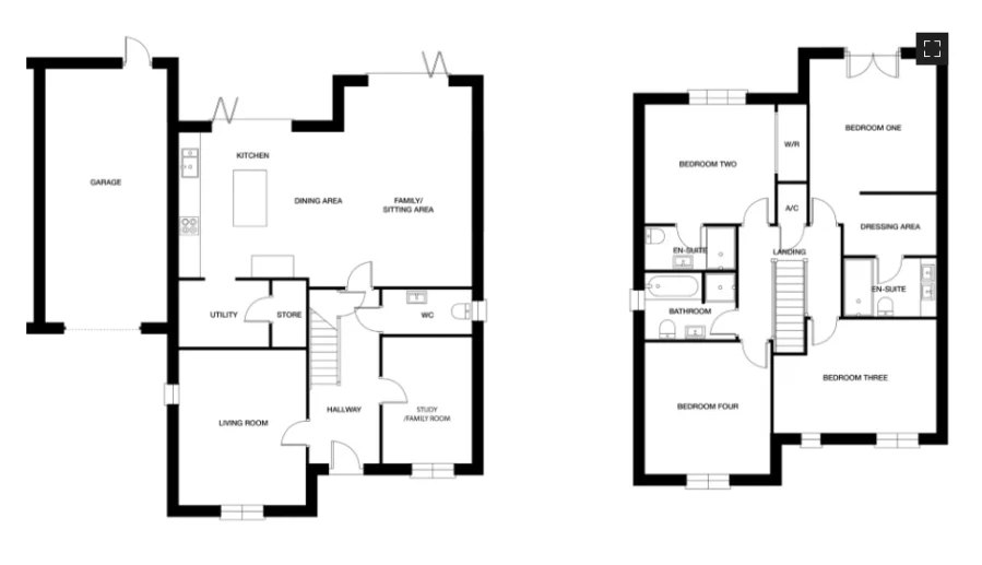
At the heart of each home is a spacious kitchen, dining and family area, enhanced by bifold doors that open out to the enclosed rear garden – perfect for indoor-outdoor living. A separate living room offers a quiet retreat, while a flexible study or additional family room provides space for remote working or relaxation. Practicality is key, with a dedicated utility room, cloakroom, and an attached single garage. Upstairs, the spacious master bedroom boasts a dressing area and en-suite, while bedroom two also enjoys the privacy of its own en-suite. Two further bedrooms and a contemporary family bathroom complete the first floor, making these homes ideal for growing families or those in search of extra space.

This home includes the following:
Solar panels to roof
EV charging poin
En-suite to master bedroom & bedroom 2
Enclosed rear garden
Garage & Driveway

Details added: 23/03/2026
Are we missing any purchase information? Click here to contact the developer

Floorplan Green-arrow

Floorplan:

Floorplan 900 3566086 1774253351

Siteplan Green-arrow

Siteplan:

Floorplan 900 3566081 1774253346

Map & Street view Green-arrow

Development Info Green-arrow

Fosbrooke View

Ravenstone
Leicestershire
LE67 2AB

View Full development

Welcome to Fosbrooke View, an exciting new development featuring nine beautifully designed homes in a picturesque village location. These traditionally built residences offer the perfect blend of modern amenities whilst maintaining charming architectural detail. Each home has been thoughtfully crafted to provide spacious living areas, elegant finishes, and beautiful outdoor spaces, catering to families and individuals alike. We invite you to explore these exceptional homes, where community and convenience await at every turn.
Nestled in the serene countryside of Leicestershire, Ravenstone is a hidden gem that perfectly captures the essence of rural England. Located just 5 miles northeast of Ashby-de-la-Zouch and about 15 miles southwest of the vibrant city centre of Leicester, this quaint village offers a unique escape into nature, history, and community spirit.
Surrounded by rolling hills and lush farmland, it is an idyllic spot for nature lovers and outdoor enthusiasts. The scenic landscape provides the perfect backdrop for walking and cycling, with numerous trails winding through the countryside. Whether you’re looking for a peaceful stroll or an invigorating bike ride, the beauty of the area invites you to explore its many paths. The surrounding countryside is also dotted with local parks and nature reserves, offering ample opportunities for picnics, bird watching, exploring and more.
While Ravenstone is a small village it still offers amenities such as a village shop and post office, but residents are not far from larger towns like Ashby-de-la-Zouch and Coalville, where a large variety of shops, cafes, and amenities can be found. This proximity allows residents to enjoy the tranquillity of village life while still having access to everything they need for daily living. It’s a perfect balance that many find appealing.
Enquire today to be added to the database and be among the first to be notified of details for this coming soon development.

Details added: 28/07/2025
Are we missing any purchase information? Click here to contact the developer

Mortgage Calculator Green-arrow


Disclaimer: The information contained in this site is for general guidance on matters of interest only and New Homes Place Limited holds no warranty for the accuracy of any development or property description or any linked or associated information. Computer generated images and photography are indicative and are intended for illustrative purposes only. They may not represent the actual furnishing and finishes of a property or development.
Spinner-transparent-turq