2 bedroom semi detached house
The charming Hadleigh is an attractive property, offering all you need in a quaint yet stylish two bedroom home.
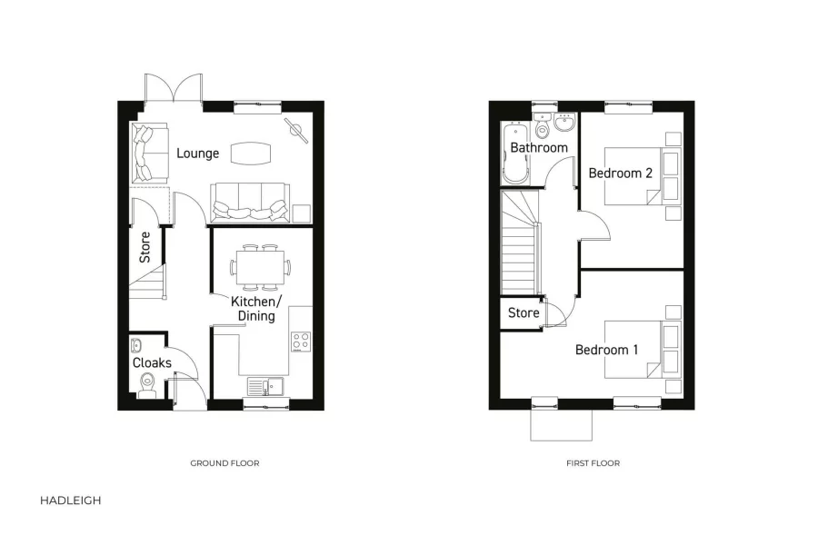
A roomy hallway with useful downstairs cloakroom leads to the high specification kitchen and dining area, providing a cosy hub of the home with ample space for entertaining.
To the rear of the property the spacious lounge boasts stunning French doors that open out to the garden, filling the relaxing room with light.
Upstairs you will find a generous master bedroom and a second double bedroom with a modern family bathroom.
- Open plan kitchen and dining area, great for entertaining
- Guest WC off hallway
- Cosy lounge perfect for relaxing with feature French doors leading to the rear garden
- 2 Spacious double bedrooms
- Extra under stair storage plus upstairs handy for family life
- Driveway with parking
- Built by us, personalised by you — choose the upgrades and details that matter most.
- Council Tax: Please confirm the council tax band with Harron Homes
- Tenure: Please confirm if this is a freehold or leasehold property with Harron Homes

















