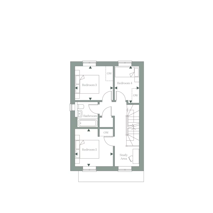
4 bedroom semi detached house
All-inclusive, high specification
Shaker style kitchens with stunning details
Integrated Bosch appliances to all homes
Stone worktops to some 4-bedroom homes
Underfloor heating to ground floor
Fitted wardrobe to principal bedrooms
Parking for at least 2 cars with every home plus EV charger to every home
Turf and Indian Sandstone patio paving in the rear gardens
10-year Premier Guarantee build warranty
2-year Fernham Homes customer service support
All private homes are freehold and contribute to an estate management charge of approximately £327 per annum
All private homes under construction have a PEA Rating B
Council tax bands are yet to be determined














