2 bedroom end terraced house
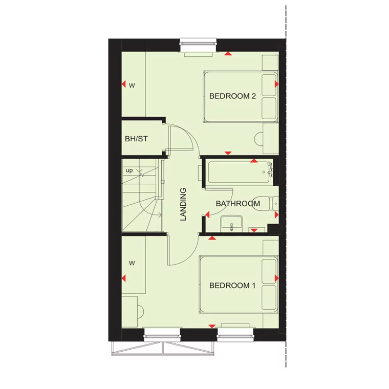
THE DENFORD, 2 BEDROOM HOME Popular with first-time buyers, the energy-efficient Denford offers contemporary style. The open-plan layout allows the rooms to flow with the lounge seamlessly connecting to the kitchen and dining area. French doors lead to the garden. There is also the convenience of a downstairs WC. There are two double bedrooms, one either side of the family bathroom.



















