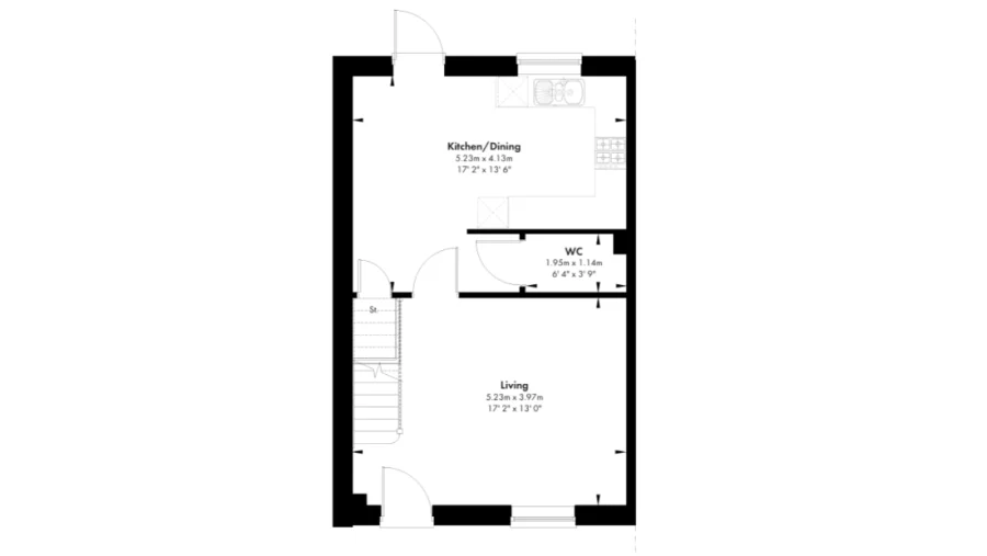
3 bedroom semi detached house
This thoughtfully designed home offers light-filled open-plan living, a stylish Symphony kitchen overlooking the garden and rear door to invite the outside in.


3 bedroom semi detached house
This thoughtfully designed home offers light-filled open-plan living, a stylish Symphony kitchen overlooking the garden and rear door to invite the outside in.






Set against the rolling backdrop of north Leicestershire’s countryside, Waltonbrook is a thoughtfully designed collection of 66 new homes in the peaceful village of Burton on the Wolds. Here, timeless rural charm meets modern-day comfort – creating a place where families of all shapes and sizes can grow, thrive and settle. Life at Waltonbrook means being part of something special – a warm and welcoming village where everything feels close, connected and full of possibility.
What’s here for you
66 beautifully crafted, energy-efficient new homes
Choice of spacious 1, 2, 3, 4 and 5-bedroom properties
Idyllic village setting with scenic walks and green space
Highly rated local primary school
Just 10 minutes from the vibrant town of Loughborough
