4 bedroom house
4 bedroom home
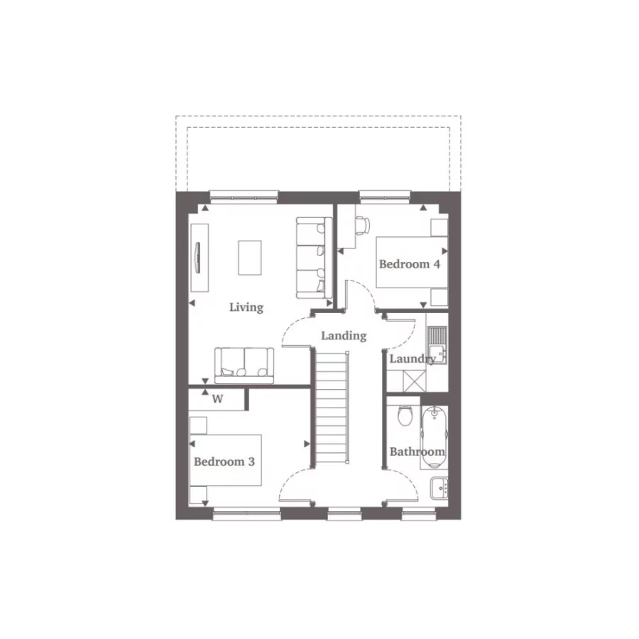
Home 35 is a spacious mid-terraced four bedroom house with an integral garage and driveway parking. The ground floor is dedicated to an open plan kitchen/living/dining room with French doors opening onto the Indian sandstone patio of the turfed rear garden. On the first floor you’ll find a living room, laundry room, family bathroom and two bedrooms – one with fitted wardrobes. The second floor offers a main bedroom with en-suite as well as a second bedroom with en-suite. There is also a good amount of eaves storage on this floor.
Home 32 This unique four bedroom home has a large open plan kitchen/living/dining room with French doors opening onto an Indian sandstone patio. There is also a handy cloakroom and two storage cupboards on the ground floor. The second floor offers three bedrooms, two with fitted wardrobes, as well as a family bathroom. The top floor is devoted to the main bedroom which benefits from wardrobes, cupboard space and a stylish en-suite.
Home 31 This spacious four bedroom mid-terrace home offers versatile living for all the family. On the ground floor you will find a large open plan kitchen/living/dining room accessed off the hallway. There is also a handy cloakroom on the ground floor. The first floor comprises a formal living room, two double bedrooms, one of which has fitted wardrobes, a family bathroom and a laundry room. The top floor houses the main bedroom with en-suite, plus a second double bedroom also with an en-suite. This home offers plenty of eaves storage space.


















