New homes in Barnsley, South Yorkshire

4 Qty-bedrooms
£395,000

Plot 96 - The Shelford, Nevison's Fold, South Yorkshire, South Yorkshire, S70 3PA

Spinner
Spinner

Property Details Green-arrow

4 bedroom detached house

The Shelford will be adored by families, a spacious, four bedroom detached home with integral garage and classic design features.

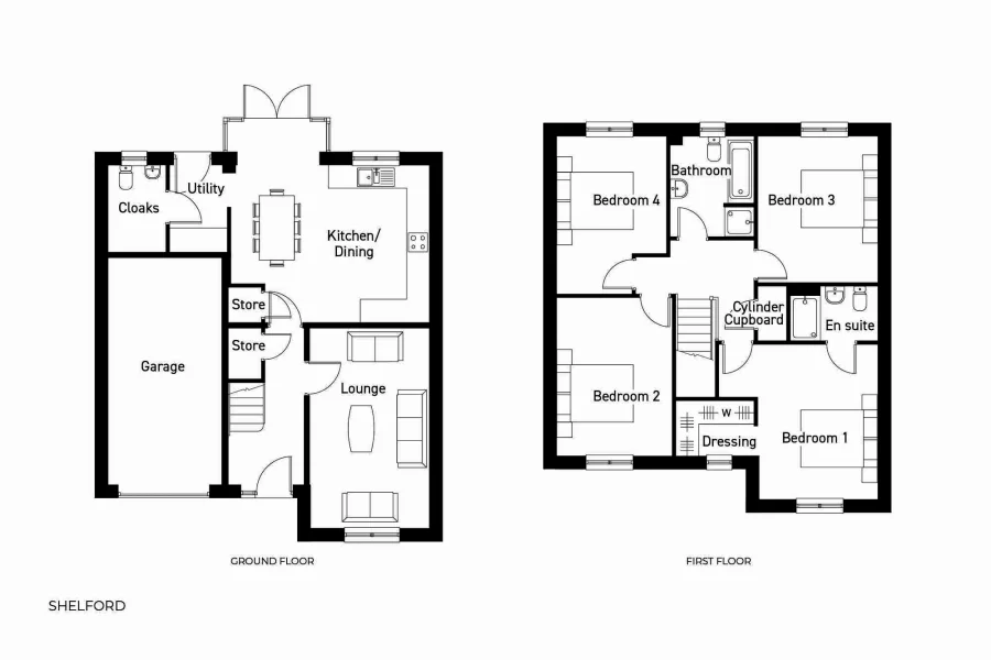
Accessed by glazed doors from the large hallway, the living room offers plenty of space for everyday living and entertaining. There is a useful downstairs cloakroom, perfect for busy family life and at the heart of the property is an impressive, high specification kitchen with dining area, a true hub of the home that brings the family together.

This stunning open plan room is bathed in natural light filling the large dining area. The stylish French doors that open out onto the garden, creating an elegant space for entertaining in the warmer summer months. There is a separate utility room and an integral garage.

The upstairs landing leads to four, fabulous double bedrooms and a modern yet elegant family bathroom boasting both a bath and separate shower cubicle. The magnificent master bedroom comes its own stylish en-suite shower room and dressing area, a real retreat after a busy day.

Property Features:
  • Open plan kitchen and dining area with French doors to the garden, a perfect space for family dinners
  • Separate utility handy for laundry or extra storage plus access to garden and guest WC
  • Spacious lounge filled with natural light
  • Master bedroom complete with your choice of Hammonds wardrobes to dressing area and private ensuite
  • 3 additional double bedrooms for family and guests
  • Good-sized, stylish family bathroom offering both a bath and separate shower cubicle
  • Block paved driveway leading to integral garage
  • NHBC 10 year warranty giving you peace of mind
  • Council Tax: Please confirm the council tax band with Harron Homes
  • Tenure: Please confirm if this is a freehold or leasehold property with Harron Homes
Details added: 16/01/2026
Are we missing any purchase information? Click here to contact the developer

Floorplan Green-arrow

Floorplan:

Floorplan 900 3528816 1768539681

Map & Street view Green-arrow

Development Info Green-arrow

Nevison's Fold

Bleachcroft Way
Barnsley
South Yorkshire
S70 3PA

View Full development

WE’LL BUY YOURS, SO YOU CAN BUY OURS
MADE POSSIBLE WITH PART EXCHANGE!

Welcome to Nevison’s Fold, modern homes in a breathtaking natural setting.


Set on the edge of the charming market town of Barnsley, Nevison’s Fold offers a beautiful collection of two, three, and four bedroom homes, surrounded by picturesque views.


This exclusive development features expansive green spaces, family-friendly play areas, miles of footpaths, dedicated wildlife habitats, oak woodlands, and over 12 hectares of wildflower meadows. It also incorporates the historic Dob Sike waterway, adding character and a sense of heritage to the landscape.


Each home at Nevison’s Fold is thoughtfully designed to complement its surroundings while offering all the comforts of modern living, making it an ideal choice for a wide range of buyers.

Details added: 27/04/2022
Are we missing any purchase information? Click here to contact the developer

Mortgage Calculator Green-arrow


Disclaimer: The information contained in this site is for general guidance on matters of interest only and New Homes Place Limited holds no warranty for the accuracy of any development or property description or any linked or associated information. Computer generated images and photography are indicative and are intended for illustrative purposes only. They may not represent the actual furnishing and finishes of a property or development.
Spinner-transparent-turq