4 bedroom detached house
The beautiful Warkworth is a spacious four-bedroom, detached family home with an integral double garage, ideal for families that are looking for clever design and luxury features.
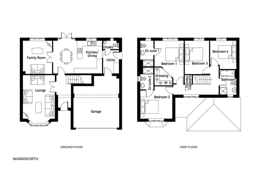
On entering this substantial property, you will find classic double doors that lead into a luxurious lounge with a stunning feature bay window. The hub of the home is the high specification kitchen with a dining area, a true focal point that benefits from stylish French doors opening out onto the pretty garden, perfect for entertaining on warm summer evenings. Catering for busy family life, there is a utility room with access to the garden and a spacious double garage. Double doors from the dining area take you into a homely family room which is an ideal place for children to play or can be used as a snug for the whole family to enjoy.
The first floor offers an abundance of space and versatility with four stunning double bedrooms. The magnificent master bedroom has a stylish en-suite and a separate dressing area, a touch of glamour for the modern busy lifestyle. The second bedroom also features an en-suite shower room, offering guests a luxurious stay. The modern family bathroom is situated near bedrooms three and four and has a bath and a separate shower.
- Elegant four-bedroom family home with space for everyone
- Large and light open plan kitchen/dining area with French doors to the garden a perfect place for cooking and family meals
- Spacious lounge with bay window and enough space for the family
- Family room off dining area is ideal as a lounge for older children or entertaining guests
- Master suite boasting impressive dressing area with Hammonds wardrobe and private ensuite
- Bedroom 2 ideal for teenagers or guests with additional ensuite
- Contemporary family bathroom with separate bath and shower plus your choice of tiling
- Separate utility with access to WC, rear garden and integral garage
- Double integral garage set on a block paved driveway
- Council Tax: Please confirm the council tax band with Harron Homes
- Tenure: Please confirm if this is a freehold or leasehold property with Harron Homes
























