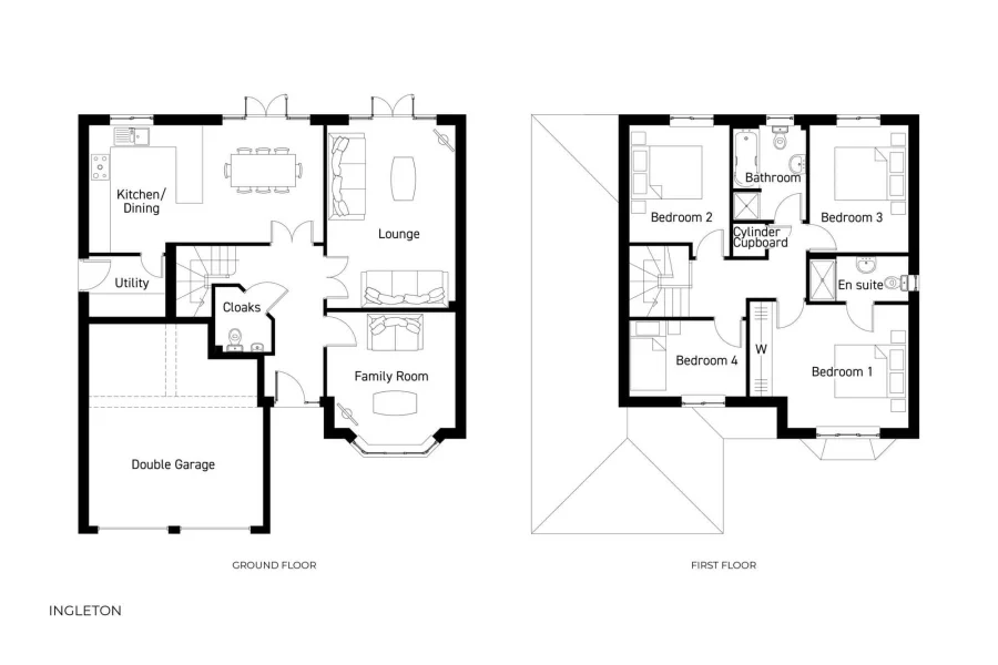
4 bedroom detached house
The beautiful Ingleton is a stylish four bedroom property that benefits from high specification design and classic details.
An impressive, spacious hallway leads to three attractively designed reception rooms, utility room and cloakroom. As well as an elegant separate lounge, the Ingleton boasts a light filled, relaxing family room with stunning feature bay window which could make the ideal playroom or study.
The luxurious lounge is accessed from the hallway via classic double doors and benefits from a set of French doors that fill the space with light. But the real jewel in the Ingleton’s crown is the high specification kitchen with breakfast bar and modern dining area, a real hub of the home for busy family life. From here, another set of French doors lead out into the garden, which is ideal for entertaining on warm summer evenings. The useful utility room has direct access to the garden.
Upstairs there are four generous bedrooms. The stunning master bedroom has a luxury en-suite shower room, while there is both a bath and separate shower in the modern family bathroom, maintaining the properties elegant feel.
- Open plan kitchen and dining area with French doors to the rear garden
- Dining room suitable for entertaining family and friends or as a snug or hobby room
- Lounge with stylish French doors bringing the outside in ideal for blending indoor/outdoor life during the warmer months
- Master bedroom complete with Hammonds wardrobes and private ensuite
- Modern family bathroom enjoys both separate bath and shower
- Downstairs WC with choice of tiling
- Separate utility handy for laundry or extra storage plus access to garden
- Block paved driveway leading to double integral garage which can be used for extra storage
- 5% DEPOSIT CONTRIBUTION AVAILABLE WORTH £21,750
- Council Tax: Please confirm the council tax band with Harron Homes
- Tenure: Please confirm if this is a freehold or leasehold property with Harron Homes























