New homes in Wetwang, East Yorkshire

4 Qty-bedrooms
£420,000

Plot 74 - The Naunton, Chariot’s Keep, East Yorkshire, YO25 9XR

Spinner
Spinner

Property Details Green-arrow

4 bedroom detached house

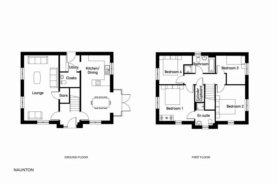
The Naunton is a spacious four-bedroom detached home with a single detached garage. Designed for families to flourish with its instinctive design and attention to detail. The downstairs comprises of a light-filled dual-aspect living room and stunning kitchen-diner with French doors to the rear garden and a stylish specification. From the kitchen, there is a utility with access to the driveway and a WC.

Upstairs offers three large double bedrooms and a versatile single bedroom, the master ensuite benefitting from a private ensuite. There is also a family bathroom perfect for your everyday needs with both a shower and bath on offer. With storage throughout and plenty of space for everyday, the Naunton is perfect for a growing family.

Property Features:
Details added: 04/12/2025
Are we missing any purchase information? Click here to contact the developer

Floorplan Green-arrow

Floorplan:

Floorplan 900 3513216 1764824450

Map & Street view Green-arrow

Development Info Green-arrow

Chariot’s Keep

Beverley Road
Wetwang
East Yorkshire
YO25 9XR

View Full development

Welcome to Chariot’s Keep, your perfect countryside escape.

Located in the beautiful Yorkshire Wolds, Chariot’s Keep offers a select range of bungalows and two- to five-bedroom homes. Enjoy peaceful rural living while staying close to Driffield and Stamford Bridge, where you’ll find great shops, cafés, pubs, and restaurants.

With easy links to York, Scarborough, and Hull, this development combines countryside calm with everyday convenience. Families will appreciate the village primary school just a short walk away, along with excellent schooling options in nearby Wetwang.

Homes at Chariot’s Keep are designed for modern living, featuring smart layouts and energy-efficient touches to help keep running costs down. And with the Yorkshire Wolds on your doorstep, scenic walks and local landmarks, like Burton Agnes Hall and the medieval village of Wharram Percy, are yours to explore.

Details added: 24/02/2024
Are we missing any purchase information? Click here to contact the developer

Mortgage Calculator Green-arrow


Disclaimer: The information contained in this site is for general guidance on matters of interest only and New Homes Place Limited holds no warranty for the accuracy of any development or property description or any linked or associated information. Computer generated images and photography are indicative and are intended for illustrative purposes only. They may not represent the actual furnishing and finishes of a property or development.
Spinner-transparent-turq