4 bedroom detached house
Ready to move in to! House to sell? We can buy your home with our Part Exchange scheme – and we’ll also pay your legal fees.
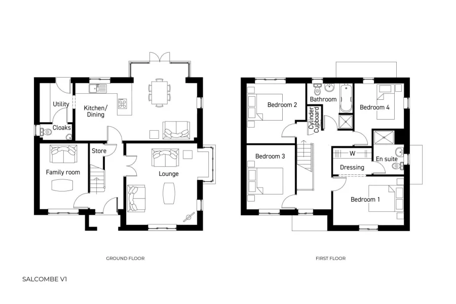
The stylish Salcombe, a four bedroom detached property, has everything a modern family home needs without compromising on luxury features and high end design with the added benefit of a detached double garage.
A spacious hallway leads through to a bright and spacious lounge and an additional stylish family room, perfect for the children to play or even a study for yourself. The focal point of this home is the modern kitchen that has been carefully designed to a high specification. In the dining area you will find classic French doors that open onto the garden, creating light and space, perfect entertaining in the summer months. This central family hub has room for a sofa, ideal for relaxing with a coffee on a Sunday morning. The utility room is accessed from the kitchen and also has a downstairs cloakroom to maximise on space.
Upstairs offers stylish versatility. Encircling the roomy central landing, are four generous sized bedrooms including the magnificent master bedroom with its private en-suite shower room and sophisticated dressing area. The jewel in the Salcombe crown, the master bedroom is luxuriously spacious, a real retreat in your own home. Bedrooms two and three have ample space for double beds, accommodating a growing family or visiting guests. Bedroom four is also well proportioned and will work as either a bedroom or study, located next to the modern family bathroom, with both bath and shower facilities.
- Ready and waiting for you to move in!
- Part Exchange and Legal fees paid
- Situated in a desirable corner position offering added privacy and kerb appeal
- Showstopping 20ft kitchen dining area with Symphony units, Bosch appliances including double oven
- Spacious lounge ideal for relaxing or entertaining, filled with natural light
- Separate family room offering flexible space-perfect for a home office, snug or playroom
- Master suite with private ensuite and Hammonds wardrobes-crafted for comfort and longevity
- Energy-efficient design with quality fixtures from trusted brands including Bosch, Hansgrohe, and Ideal Standard
- Built to exceptional standards with attention to detail and craftsmanship throughout
- 10 year NHBC warranty & insurance for peace of mind
- Council Tax: Please confirm the council tax band with Harron Homes
- Tenure: Please confirm if this is a freehold or leasehold property with Harron Homes























