3 Qty-bedrooms
From £289,000

Hamble , Acresford Park, WS15 4HH

Spinner
Spinner

Property Details Green-arrow

3 bedroom house

A WELCOMING CORNER 3 BEDROOM SEMI-DETACHED HOME
Delve into the Hamble, our superb three bedroom home benefiting from two side-by-side parking spaces and a south-east-facing rear garden. With an exceptional open-plan kitchen/dining area, spacious hallway, downstairs bathroom and a dual aspect lounge with French doors.
Upstairs, you’ll find three spacious bedrooms with the master bedroom benefiting from its own luxury en-suite shower room.
Please note: Images shown are of a similar house type and may not represent the exact specification, layout, or finishes of this plot. For full details, please speak with our Sales Executives on site.

Details added: 13/01/2021
Are we missing any purchase information? Click here to contact the developer

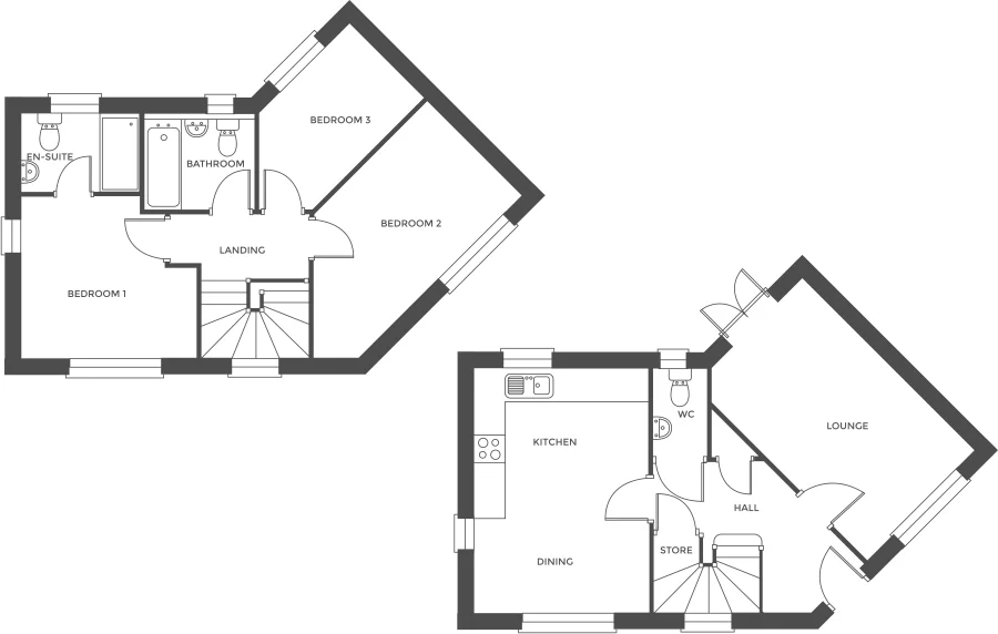
Floorplan Green-arrow

Floorplan:

Floorplan 900 1766386 1610537192

Map & Street view Green-arrow

Development Info Green-arrow

Acresford Park

Handsacre
WS15 4HH

View Full development

Set within beautiful countryside and close to the canal, Acresford Park offers a peaceful lifestyle in a well-connected village setting — the perfect place to call home. We’re excited to announce that Phase 3 of our ever-popular Acresford Park development in the sought-after village of Handsacre is now underway, bringing 18 brand new plots to this thriving community. While our focus moves to this upcoming phase, we still have just a couple of bungalows remaining for sale in Phase 2b — a rare opportunity not to be missed. These beautifully designed homes, ideal for first-time buyers, growing families, or anyone seeking a fresh start in a welcoming community, are listed below. Ideally located near Stafford, this development provides the best of both worlds. A peaceful village with excellent connections to surrounding towns and cities. If you're searching for new homes in Lichfield, Acresford Park offers an attractive and accessible option within easy reach. With homes built to the highest standards and surrounded by open green spaces, Acresford Park delivers more than just a place to live – it offers a community to call home. Plus, its proximity to Stafford, Lichfield, and Cannock makes commuting and day-to-day living a breeze.

Details added: 18/01/2019
Are we missing any purchase information? Click here to contact the developer

Mortgage Calculator Green-arrow


Disclaimer: The information contained in this site is for general guidance on matters of interest only and New Homes Place Limited holds no warranty for the accuracy of any development or property description or any linked or associated information. Computer generated images and photography are indicative and are intended for illustrative purposes only. They may not represent the actual furnishing and finishes of a property or development.
Spinner-transparent-turq