4 bedroom detached house
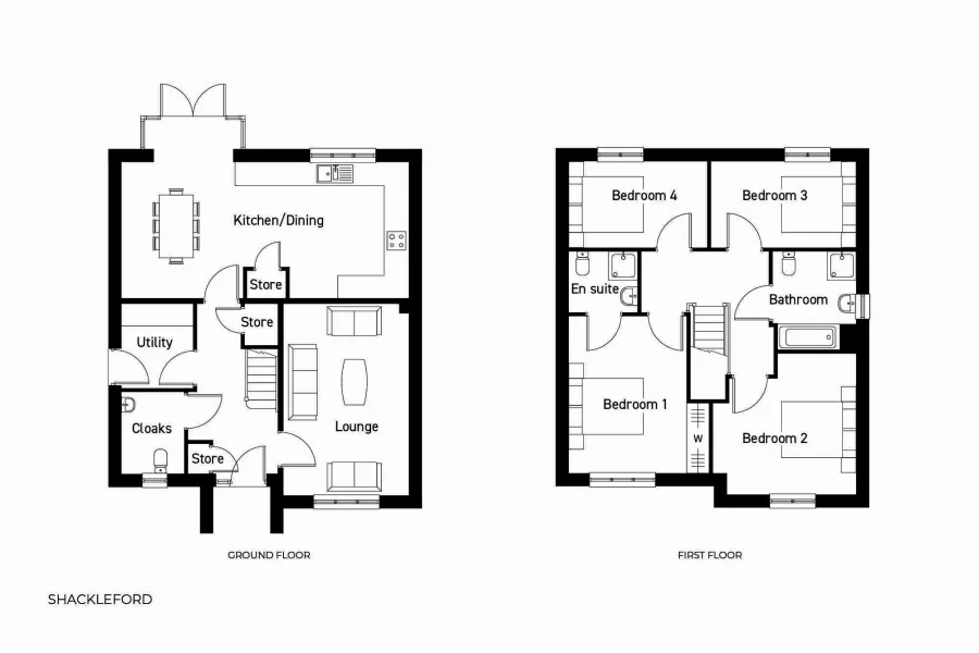
The Shackleford is a stylish, four-bedroom detached property, thoughtfully designed to style with functionality, ensuring it meets a lifetime of evolving needs.
Key features include well-placed sockets and switches for ease of use, level access to all entrances for smooth movement throughout, and built-in power and structural provisions for the potential addition of a through-floor lift. The ground floor benefits from a wet room, while upstairs, you’ll find another wet room and a private en-suite in the main bedroom, offering flexibility for the future.
The bright and welcoming lounge is perfect for family relaxation, while the modern kitchen, designed to a high specification, features a dining area with classic French doors that open onto the garden, flooding the space with light. A separate utility room adds to the home’s practicality.
Upstairs, the central landing is surrounded by four spacious bedrooms. The main bedroom is a welcome retreat with its own en-suite shower room, while bedroom two comfortably accommodates a double bed. Bedrooms three and four offer versatility, whether as additional bedrooms or home offices.
With its thoughtful design and future-ready features, the Shackleford is perfect for those seeking a blend of luxury and long-term practicality.
- Spacious detached property with detached garage and driveway space
- Modern open plan kitchen and dining area with feature French doors leading to garden
- Utility room with separate WC and access to the driveway
- Four bedroom home with ensuite in main bedroom
- Main family bathroom with separate bath and shower
- NHBC 10 year warranty giving you peace of mind
- Built by us and personalised by you, this home includes £10,000 worth of interior upgrades to help you make it truly your own.
- Book your private appointment today to discuss your choices with our experienced sales advisor.
- Council Tax: Please confirm the council tax band with Harron Homes
- Tenure: Please confirm if this is a freehold or leasehold property with Harron Homes


















