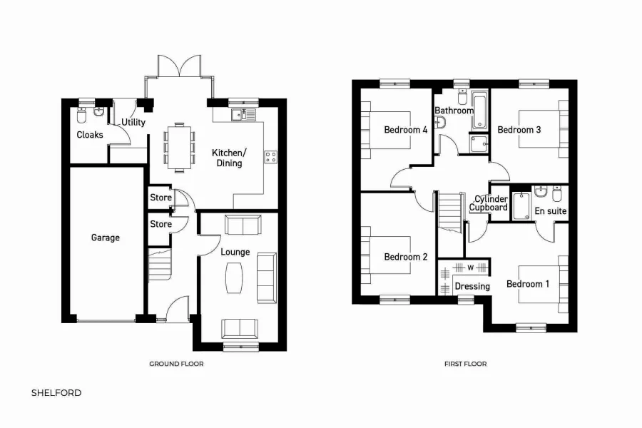
4 bedroom detached house
The Shelford will be adored by families, a spacious, four bedroom detached home with integral garage and classic design features.
Accessed by glazed doors from the large hallway, the living room offers plenty of space for everyday living and entertaining. There is a useful downstairs cloakroom, perfect for busy family life and at the heart of the property is an impressive, high specification kitchen with dining area, a true hub of the home that brings the family together.
This stunning open plan room is bathed in natural light filling the large dining area. The stylish French doors that open out onto the garden, creating an elegant space for entertaining in the warmer summer months. There is a separate utility room and an integral garage.
The upstairs landing leads to four, fabulous double bedrooms and a modern yet elegant family bathroom boasting both a bath and separate shower cubicle. The magnificent master bedroom comes its own stylish en-suite shower room and dressing area, a real retreat after a busy day.
- Open plan kitchen and dining area with French doors to the garden, a perfect space for family dinners
- Separate utility handy for laundry or extra storage plus access to garden and guest WC
- Spacious lounge filled with natural light
- Master bedroom complete with your choice of Hammonds wardrobes to dressing area and private ensuite
- 3 additional double bedrooms for family and guests
- Good-sized, stylish family bathroom offering both a bath and separate shower cubicle
- Block paved driveway leading to integral garage
- NHBC 10 year warranty giving you peace of mind
- Council Tax: Please confirm the council tax band with Harron Homes
- Tenure: Please confirm if this is a freehold or leasehold property with Harron Homes






















