2 bedroom apartment
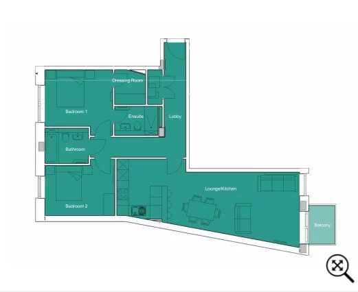
This generous two-bedroom apartment has been carefully designed to balance space, comfort and style. At its centre is an impressive open plan kitchen, living and dining area, stretching over 32 ft in length, with doors opening onto a private balcony overlooking the landscaped courtyard gardens – a perfect retreat for fresh air and relaxation.
The standout feature of this home is the principal bedroom, which includes a dedicated walk-in wardrobe and a sleek ensuite bathroom, creating a luxurious private sanctuary. A spacious second double bedroom adds versatility for guests, a home office or hobbies, while a separate utility room offers practical storage. With concierge service and access to private residents’ gardens, this apartment delivers city living with a touch of elegance.
Key Features:
Expansive open plan kitchen, living and dining area extending over 32 ft
Private balcony with views across the tranquil courtyard gardens
Principal bedroom with walk-in wardrobe and stylish ensuite
Second generously sized double bedroom – ideal for guests or home working
Separate utility space for additional storage and convenience
Flooring fitted throughout as part of the fully inclusive specification
Onsite concierge service for residents’ peace of mind
Access to exclusive landscaped private gardens
Ready to move into now
Located on East Street, Factory No.1 is just a short walk from an array of independent coffee shops, bars, shops and restaurants and just half a mile to Wapping Wharf and the historic River Avon.
^Terms and conditions apply. *Completion dates are estimated and are subject to change.
Images are typical of the development and computer generated images are used for illustrative purposes only. Please note the property type photography displayed may not be of the exact Show Homes located on-site at this development and may include optional upgrades. For full details of the design and specification of the property you are looking to purchase, please always refer back to the Sales Executive.



























