New homes in Mastin Moor, Derbyshire

5 Qty-bedrooms
£474,000

Plot 54 - The Banbury, Low Ridding, Chesterfield, Derbyshire, S43 3FF

Spinner
Spinner

Property Details Green-arrow

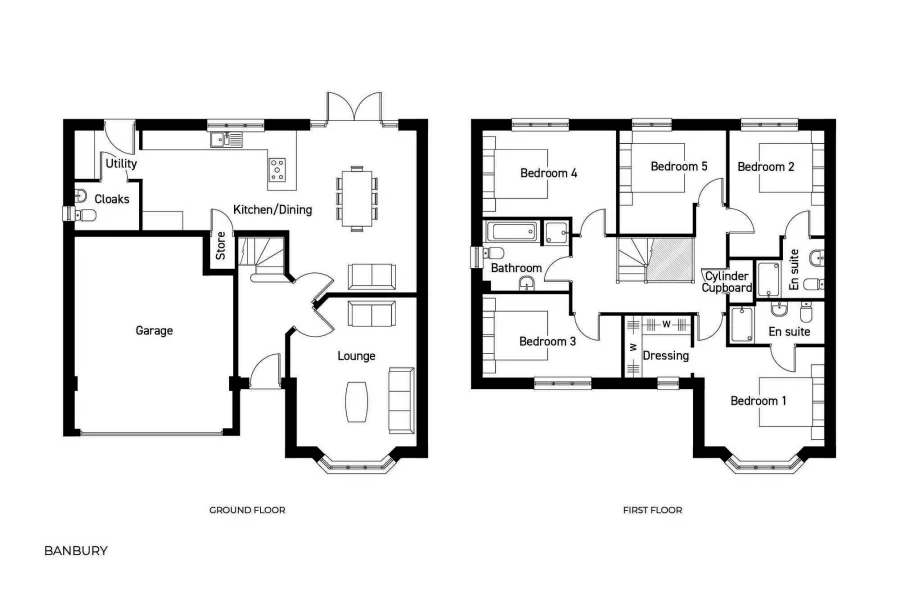
5 bedroom detached house

The grand, thoughtfully designed five bedroom Banbury comes with integral double garage and block paved driveway is truly spacious and offers everything you could wish for in a large family home.

The hallway leads into a light and roomy lounge, a perfect space for relaxing, while at the rear of the property lays the impressive high specification kitchen, which overlooks a generous garden. This magnificent open-plan room includes space for a dining table and has beautiful French doors leading out onto the garden, ideal for the summer months. The ground floor also benefits from a cloakroom and utility room, accessed via the kitchen.

The grandeur of this home is continued upstairs, and features five spacious bedrooms along with a separate study. The sophisticated main bedroom benefits from a dressing area and en-suite. Bedroom two boasts its own en-suite, while the stylish family bathroom features both a bath and shower.

Property Features:
Details added: 16/12/2025
Are we missing any purchase information? Click here to contact the developer

Floorplan Green-arrow

Floorplan:

Floorplan 900 3518216 1765861238

Map & Street view Green-arrow

Development Info Green-arrow

Low Ridding

Bolsover Road
Mastin Moor
Chesterfield
Derbyshire
S43 3FF

View Full development

WE’LL BUY YOURS, SO YOU CAN BUY OURS
MADE POSSIBLE WITH PART EXCHANGE!

 


Low Ridding – Open Surroundings, Strong Connections


Located on the edge of Derbyshire countryside, Low Ridding offers a calmer pace of life with quick access to everything you need. Chesterfield is just minutes away for shopping, dining, and everyday essentials, while excellent road and rail links, and a bus route on your doorstep, make commuting across the region simple.


The development is framed by 20 hectares of green space, with walking routes, children’s play areas, and landscaped spots to relax and unwind.


Homes here pair contemporary style with practical layouts, featuring light-filled rooms and quality finishes throughout. Whether you’re taking your first step on the ladder, seeking a home for hybrid working, or downsizing without compromise, Low Ridding has something to suit every stage of life.


Here, fresh air and open surroundings come with the convenience of strong transport links and nearby amenities.

Details added: 04/06/2024
Are we missing any purchase information? Click here to contact the developer

Mortgage Calculator Green-arrow


Disclaimer: The information contained in this site is for general guidance on matters of interest only and New Homes Place Limited holds no warranty for the accuracy of any development or property description or any linked or associated information. Computer generated images and photography are indicative and are intended for illustrative purposes only. They may not represent the actual furnishing and finishes of a property or development.
Spinner-transparent-turq