4 bedroom detached house
Families will adore this spacious, four bedroom detached family home with integral garage and classic design features.
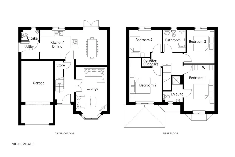
The large welcoming hallway has stylish double doors leading into the living room with feature bay window that floods the room with light. There is a useful downstairs cloakroom, perfect for busy family life and at the heart of the property is an impressive, high specification kitchen with dining area, a true hub of the home that brings the family together. This stunning open plan room features stylish French doors that open out onto the garden, creating an elegant space for entertaining in the warmer summer months. There is a separate utility room with access to the garden and the integral garage.
The upstairs landing leads to four, fabulous double bedrooms and a modern yet elegant family bathroom. The magnificent master bedroom offers comes with its own stylish en-suite shower room and glamorous dressing area, a real retreat after a busy day.
- Ideal for a family with flexible living spaces giving you the choice on how to use your space
- Open plan kitchen and dining area with French doors to the garden perfect for entertaining in warmer months
- A range of stylish choices to choose from so you can personalise the heart of your home
- Separate utility handy for laundry or extra storage plus access to garden and guest WC
- Stylish glass panel glazed doors to kitchen and lounge allowing natural light to flow throughout downstairs
- Lounge with bay window is the perfect place to relax after a busy day
- Master suite complete with stylish Hammonds wardrobes of your choice and private ensuite
- Block paved driveway leading to integral garage
- NHBC 10 year warranty giving you peace of mind
- Council Tax: Please confirm the council tax band with Harron Homes
- Tenure: Please confirm if this is a freehold or leasehold property with Harron Homes























