5 bedroom detached house
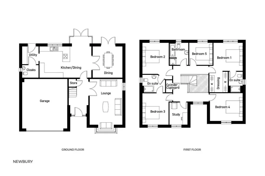
The luxury Newbury, a five bedroom detached home with integral garage offers the best in modern day living, perfect for those searching for that perfect match of luxury and style.
On entering this beautiful property you are welcomed in into a spacious hallway leading directly through to the bright and spacious lounge, the perfect space to relax and unwind after a long day. The impressive, high specification kitchen with family dining area is at the rear of the property and overlooks the beautiful garden. The dining area benefits from classic double French doors leading out onto the garden and is perfect for entertaining on warm summer evenings. Catering for the busy, modern family, the utility room is accessed from the kitchen with a door leading out to the garden and a useful, separate downstairs cloakroom that maximises on space.
Upstairs there are 5 bedrooms, 4 double bedrooms and a good sized single, with the Master benefiting from a sophisticated dressing area and a luxurious en-suite shower room, creating a glamorous retreat in your own home. The Second and third bedroom also enjoys an en-suite, making it perfect for guests. There is also a dedicated home office, perfect for home working.
- Spacious open plan kitchen and dining area with feature French doors leading to rear garden
- Utility room with access to the driveway and separate WC
- Large five bedroom home with ensuite in main bedroom
- Main family bathroom with separate bath and shower
- NHBC 10 year warranty giving you peace of mind
- Council Tax: Please confirm the council tax band with Harron Homes
- Tenure: Please confirm if this is a freehold or leasehold property with Harron Homes




















