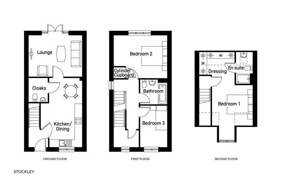
3 bedroom end terraced house
The delightful Stockley with parking offers an abundance of space that all of the family can enjoy laid out over three storeys. Created to a high specification that encompasses classic elegance with intuitive design, this home offers everything a modern family could want and need in their home.
The roomy hallway leads to the modern, large kitchen and dining room, ideal for entertaining and creating an inviting space that will bring busy families together. The generous lounge is positioned at the back of the property with stylish French doors opening to the garden, allowing light to wash in.
Upstairs, the first floor features a double bedroom and large single with the modern family bathroom making up the rest of the first floor. On the top floor, the luxurious master bedroom with stylish ensuite and dressing room can be found, ready for relaxation.
- Spacious three bedroom semi detached home over three floors with block paved parking for two cars
- Separate entrance hall leading to kitchen dining room
- Luxurious living room with feature french doors to rear southeast facing garden
- Two double bedrooms and one single bedroom
- Family bathroom
- Beautiful master bedroom with en suite & dressing area
- 10 Year NHBC Warranty giving you peace of mind
- Council Tax: Please confirm the council tax band with Harron Homes
- Tenure: Please confirm if this is a freehold or leasehold property with Harron Homes





















