2 bedroom semi detached house
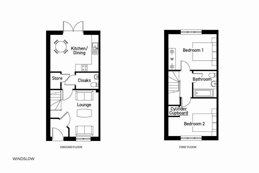
The Windslow is a two-bedroom semi-detached home ideal for first-time buyers and downsizers, offering plenty of space and natural light for everyday life and effortless entertaining all year around.
The front doors leads through to a bright, light-filled living room with a modern kitchen and dining area to the rear of the property, with French doors leading to the rear garden. The downstairs is complemented by a large WC, ideal for busy family life.
From the living room, the stairs lead up to two large double bedrooms and a stylish family bathroom boasting modern appliances and designed to withstand the rigours of modern living.
This home offers modern features in line with up-to-date building regulations, including an air source heat pump, induction hob and electric vehicle charging point.
- Semi-detached home ideal for first-time buyers and downsizers
- Two spacious double bedrooms
- Kitchen-diner with French doors to the rear garden
- Stainless steel Zanussi appliances
- Electric vehicle car charging point
- Modern induction hob and air source heat pump heating system
- Plenty of storage throughout
- Parking included
- Council Tax: Please confirm the council tax band with Harron Homes
- Tenure: Please confirm if this is a freehold or leasehold property with Harron Homes




















