New homes in Throapham, South Yorkshire

3 Qty-bedrooms
£295,000

Plot 176 - The Mawsley, Laughton Gate, Dinnington, South Yorkshire, S25 2QS

Spinner
Spinner

Property Details Green-arrow

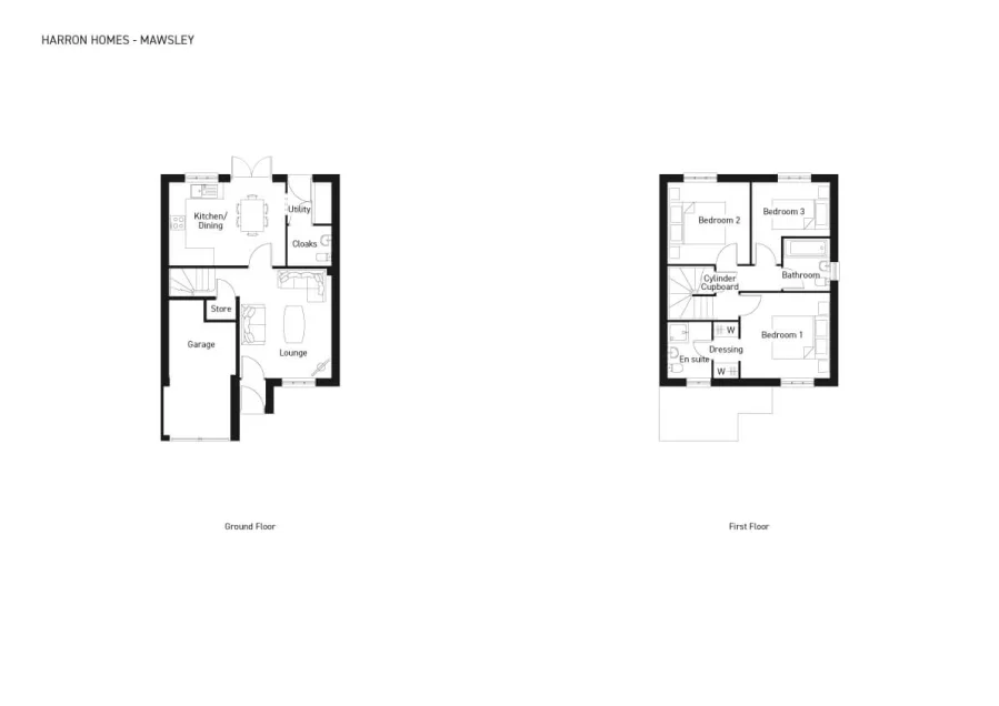
3 bedroom detached house

This stylish, three bedroom detached home offers the best in modern day living for families that want comfort and style.

The welcoming hallway leads to the light and airy, luxuriously appointed living room, while at the heart of the property is an impressive, high specification kitchen with dining area, ideal for sitting down together to share a meal.  This spacious open plan room features stylish French doors which open out onto the garden, creating the perfect space to enjoy the warmer summer months. The property also includes an integral garage.

The upstairs landing leads to the magnificent master bedroom, offering true luxury with a dressing area and stylish en-suite shower room, and a further two double bedrooms. A modern yet elegant family bathroom completes the first floor of this stylish home.

Property Features:
Details added: 06/11/2025
Are we missing any purchase information? Click here to contact the developer

Floorplan Green-arrow

Floorplan:

Floorplan 900 3500026 1762405282

Map & Street view Green-arrow

Development Info Green-arrow

Laughton Gate

Oldcotes Road
Throapham
Dinnington
South Yorkshire
S25 2QS

View Full development

Calling all Key workers, your dedication deserves recognition — save up to £25,000 on your new Laughton Gate home with our exclusive Key Worker Scheme.

Explore Laughton Gate’s newest and stunning house types!

With one foot in the countryside and the other in the quaint hamlet of Throapham in South Yorkshire, Laughton Gate is a growing community for couples and families alike with its collection of three-, four- and five-bedroom homes. These homes are perfect for people from all walks of life whether you’re looking for easy access to Sheffield while maintaining a country lifestyle or looking to avoid big-city living altogether. For families looking for a new adventure, Laughton Gate boasts excellent primary and secondary schools in the area too.

Discounted market scheme homes available. Specific criteria applies. Please click here for more details.

*Cannot be used in conjunction with any other offer. Additional terms and conditions apply

Details added: 18/02/2022
Are we missing any purchase information? Click here to contact the developer

Mortgage Calculator Green-arrow


Disclaimer: The information contained in this site is for general guidance on matters of interest only and New Homes Place Limited holds no warranty for the accuracy of any development or property description or any linked or associated information. Computer generated images and photography are indicative and are intended for illustrative purposes only. They may not represent the actual furnishing and finishes of a property or development.
Spinner-transparent-turq