4 bedroom detached house
The Tonbridge is an attractive, four bedroom detached home, perfect for families looking for style combined with high specification design.
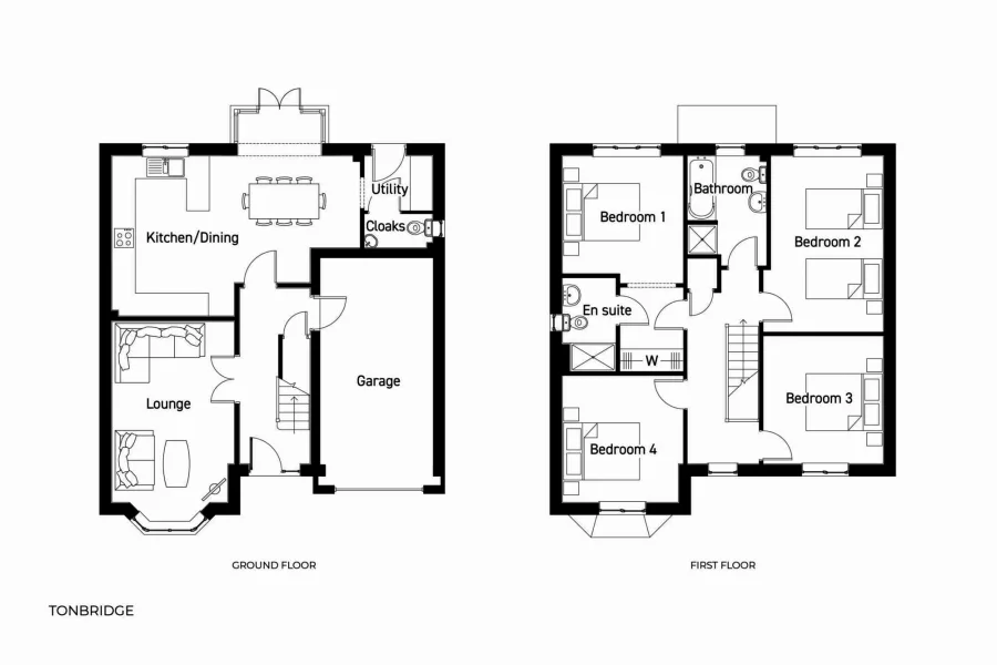
To the front of the property is a bright and spacious lounge with a stunning feature bay window that fills the room with light, the ideal space to relax and unwind after a long day. The modern kitchen has been designed to a high specification and features a beautifully appointed dining area with views to the rear garden. The dining area benefits from classic French doors opening out onto the lawn, perfect for entertaining in the warm summer months.
Accommodating a busy family life, the utility room is accessed from the kitchen and also features a useful downstairs cloakroom. There is a convenient storage cupboard underneath the stairs and the garage can be accessed directly from the hallway making it a handy extra.
Upstairs there are four double bedrooms and a stylish family bathroom, with both a shower and a separate bath. The magnificent master bedroom is the Tonbridge’s crowning glory with lovely views over the garden, an en-suite shower room and a fabulous dressing area.
- Stunning family home with four double bedrooms
- Large open plan kitchen/dining area with French doors to the garden, a perfect space for family dining enjoying quality time together
- Spacious lounge with bay window is the perfect place to relax and spend time with friends or family
- Stylish glass panel glazed doors to kitchen and lounge
- Master bedroom boasting impressive dressing area with Hammonds wardrobe and private ensuite
- Family bathroom benefits from separate bath and shower with your choice of tiling
- Separate utility handy for laundry or extra storage plus access to garden and guest WC
- Access from hallway to integral garage with flexible use
- NHBC 10 year warranty & insurance giving you peace of mind
- Council Tax: Please confirm the council tax band with Harron Homes
- Tenure: Please confirm if this is a freehold or leasehold property with Harron Homes



















