4 bedroom detached house
The stylish Salcombe, a four bedroom detached property, has everything a modern family home needs without compromising on luxury features and high end design with the added benefit of a detached double garage.
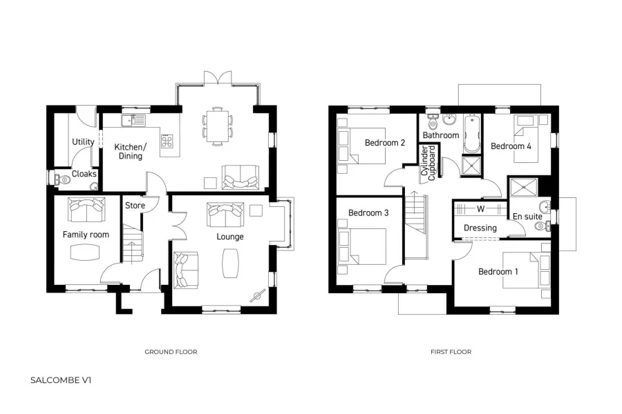
A spacious hallway leads through to a bright and luxurious lounge and an additional stylish family room, perfect for the children to play or even a study for yourself. The focal point of this home is the delightful, modern kitchen that has been carefully designed to a high specification. In the dining area you will find classic French doors that open onto the garden, creating light and space, perfect entertaining in the summer months. This central family hub has room for a sofa, ideal for relaxing with a coffee on a Sunday morning. The utility room is accessed from the kitchen and also has a downstairs cloakroom to maximise on space.
Upstairs offers stylish versatility. Encircling the roomy central landing, are four generous sized bedrooms including the magnificent master bedroom with its private en-suite shower room and sophisticated dressing area. The jewel in the Salcombe crown, the master bedroom is luxuriously spacious, a real retreat in your own home. Bedrooms two and three have ample space for double beds, accommodating a growing family or visiting guests. Bedroom four is also well proportioned and will work as either a bedroom or study, located next to the modern family bathroom, with both bath and shower facilities.
- Exquisitely designed family home boasting unrivalled quality with the added benefit of a detached double garage
- Large open plan kitchen and dining area with French doors to the garden
- Spacious lounge perfect for having friends or family over
- Separate family room with flexible use as dining room, snug or home office
- Master suite with impressive dressing area complete with Hammonds wardrobes and private ensuite
- Stylish glass panel glazed doors to kitchen and lounge giving an extra touch of luxury whilst also allowing natural light to flow throughout downstairs
- Separate utility area with access to WC and rear garden
- Family bathroom boasts both separate bath and shower
- Council Tax: Please confirm the council tax band with Harron Homes
- Tenure: Please confirm if this is a freehold or leasehold property with Harron Homes






















