5 bedroom detached house
This grand, thoughtfully designed five-bedroom property is truly spacious and offers everything you could wish for in a large family home.
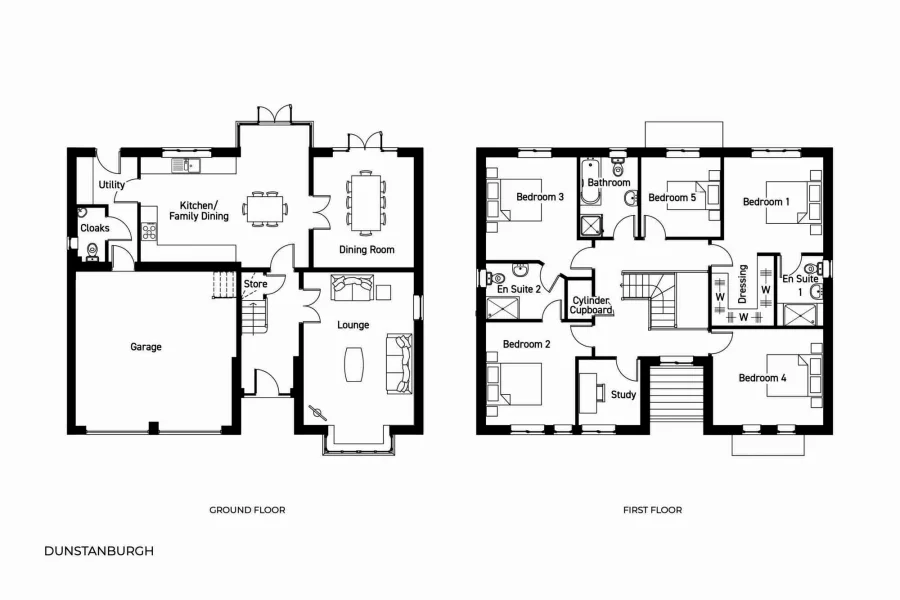
Double doors from the hallway lead into a light and roomy lounge, a perfect space for relaxing, while at the rear of the property lays the impressive high specification kitchen, which overlooks a generous garden. This magnificent open-plan room includes space for a dining table and has beautiful French doors leading out onto the garden, ideal for the summer months. Through double doors from the kitchen is a dining room, which offers an ideal space for entertaining and also features French doors. The ground floor also benefits from a cloakroom and utility room, accessed via the kitchen.
The grandeur of this home is continued upstairs, with a galleried landing sweeping around the first floor, which features five spacious bedrooms along with a separate study. The sophisticated master bedroom benefits from a dressing area and en-suite. Bedroom two boasts its own en-suite, while the stylish family bathroom features both a bath and shower.
- Grand five-bedroom family home with double integral garage
- Open plan kitchen and dining area
- Spacious lounge with bay window and glazed panel double doors, a perfect space for spending time with family after a busy day
- Five double bedrooms with ensuites to bedrooms 1 and 2
- Master bedroom boasts a walk-in dressing area, complete with your choice of Hammonds wardrobes to dressing area and private ensuite
- Dedicated study for home working
- Separate utility area provides access to cloakroom, rear garden and garage
- Block paved driveway leading to double garage
- NHBC 10 year warranty giving you peace of mind
- Council Tax: Please confirm the council tax band with Harron Homes
- Tenure: Please confirm if this is a freehold or leasehold property with Harron Homes
























