4 bedroom detached house
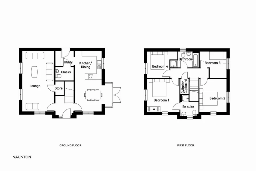
The Naunton is a spacious four-bedroom detached home with a single detached garage. Designed for families to flourish with its instinctive design and attention to detail. The downstairs comprises of a light-filled dual-aspect living room and stunning kitchen-diner with French doors to the rear garden and a stylish specification. From the kitchen, there is a utility with access to the driveway and a WC.
Upstairs offers three large double bedrooms and a versatile single bedroom, the master ensuite benefitting from a private ensuite. There is also a family bathroom perfect for your everyday needs with both a shower and bath on offer. With storage throughout and plenty of space for everyday, the Naunton is perfect for a growing family.
- Large open plan kitchen and dining area with feature French doors leading to garden
- Utility room with access to the driveway and separate WC
- Large four bedroom home with ensuite in main bedroom
- Main family bathroom with separate bath and shower
- NHBC 10 year warranty giving you peace of mind
- Council Tax: Please confirm the council tax band with Harron Homes
- Tenure: Please confirm if this is a freehold or leasehold property with Harron Homes




















