5 bedroom detached house
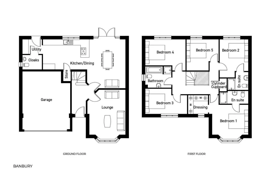
The grand, thoughtfully designed five bedroom Banbury comes with integral double garage and block paved driveway is truly spacious and offers everything you could wish for in a large family home.
The hallway leads into a light and roomy lounge, a perfect space for relaxing, while at the rear of the property lays the impressive high specification kitchen, which overlooks a generous garden. This magnificent open-plan room includes space for a dining table and has beautiful French doors leading out onto the garden, ideal for the summer months. The ground floor also benefits from a cloakroom and utility room, accessed via the kitchen.
The grandeur of this home is continued upstairs, and features five spacious bedrooms along with a separate study. The sophisticated main bedroom benefits from a dressing area and en-suite. Bedroom two boasts its own en-suite, while the stylish family bathroom features both a bath and shower.
- Large 5 bedroom home with integral double garage and block paved driveway
- Large open plan kitchen and dining area with feature french doors leading through to a spacious garden
- Separate WC, and a room utility with access to the rear
- Large family room with feature bay windows
- 5 double sized bedrooms with two ensuites
- Master bedroom with separate dressing area and Hammonds fitted wardrobes
- Main family bathroom with separate bath and shower
- NHBC 10 year warranty giving you peace of mind
- Council Tax: Please confirm the council tax band with Harron Homes
- Tenure: Please confirm if this is a freehold or leasehold property with Harron Homes




















