4 bedroom detached house
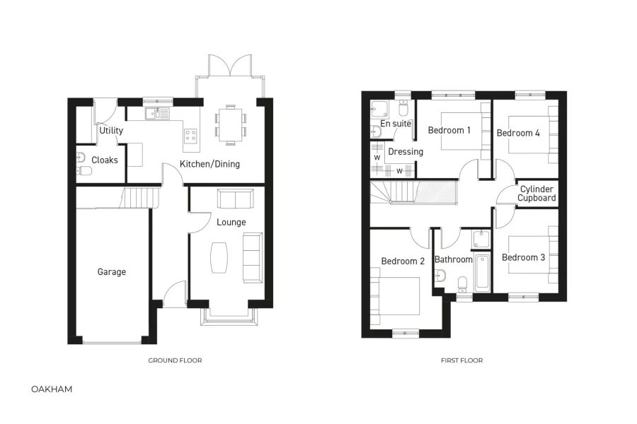
The Oakham is a four bedroom detached home with integral garage with plenty of space for growing families and for entertaining family and friends.
Downstairs boasts a large, light-filled living room with bay window perfect for cosy nights in. Enjoy the spacious contemporary-style kitchen with dining area and French doors to the rear garden so you can truly bring the outside in for summer barbecues. The ground floor is also complemented by the utility with its own access to the rear garden and a WC.
Upstairs, there are four large double bedrooms with the master ensuite benefitting through its own ensuite bathroom and dressing area, and four double bedrooms perfect as a versatile living space. The large family bathroom with shower and bath provides the flexibility that all modern families require. All of these bedrooms are purposefully designed with your comfort in mind, with designer Hammonds wardrobes providing plenty of space to organise your clothes.
- Four bedroom detached home with integral garage
- Spacious living room with bay window
- Spacious kitchen with dining area and French doors to the rear garden
- Useful utility room and convenient WC
- Four double bedrooms and a single bedroom
- Master bedroom complete with Hammonds fitted wardrobes and ensuite
- Electric vehicle car charging point
- Bathroom complete with separate shower and bath
- 10 Year NHBC Warranty
- Council Tax: Please confirm the council tax band with Harron Homes
- Tenure: Please confirm if this is a freehold or leasehold property with Harron Homes





















