New homes in Fixby, West Yorkshire

4 Qty-bedrooms
£555,000

Plot 126 - The Warkworth, Victoria Heights, West Yorkshire, West Yorkshire, HD2 2HR

Spinner
Spinner

Property Details Green-arrow

4 bedroom detached house

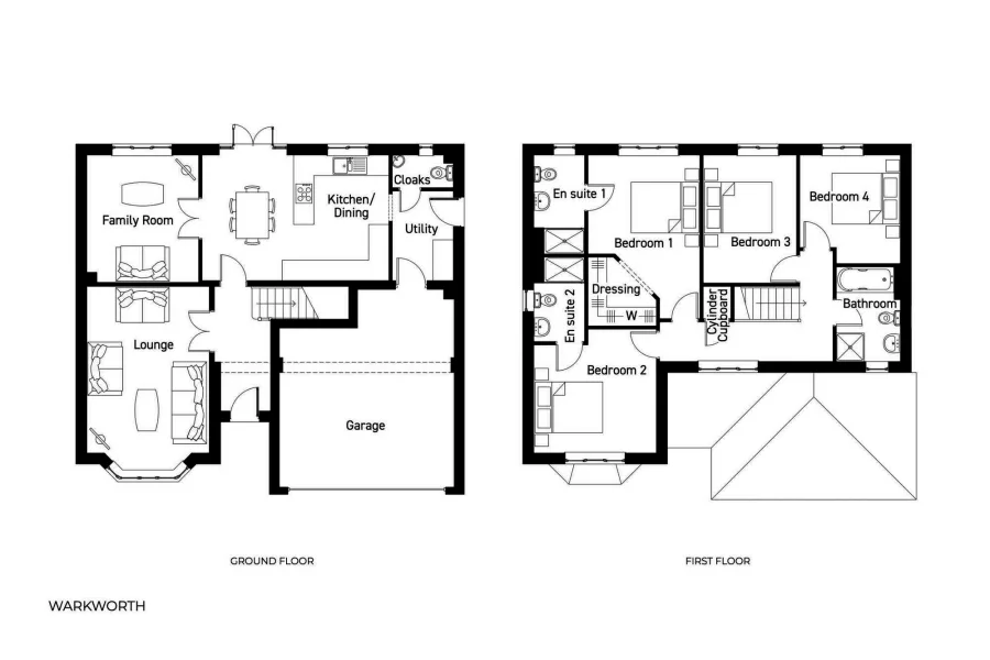
The beautiful Warkworth is a spacious four-bedroom, detached family home with an integral double garage, ideal for families that are looking for clever design and luxury features.

On entering this substantial property, you will find classic double doors that lead into a luxurious lounge with a stunning feature bay window. The hub of the home is the high specification kitchen with a dining area, a true focal point that benefits from stylish French doors opening out onto the pretty garden, perfect for entertaining on warm summer evenings. Catering for busy family life, there is a utility room with access to the garden and a spacious double garage. Double doors from the dining area take you into a homely family room which is an ideal place for children to play or can be used as a snug for the whole family to enjoy.

The first floor offers an abundance of space and versatility with four stunning double bedrooms. The magnificent master bedroom has a stylish en-suite and a separate dressing area, a touch of glamour for the modern busy lifestyle. The second bedroom also features an en-suite shower room, offering guests a luxurious stay. The modern family bathroom is situated near bedrooms three and four and has a bath and a separate shower.

Property Features:
  • Elegant four-bedroom family home with space for everyone
  • Large and light open plan kitchen/dining area with French doors to the garden a perfect place for cooking and family meals
  • Spacious lounge with bay window and enough space for the family
  • Family room off dining area is ideal as a lounge for older children or entertaining guests
  • Master suite boasting impressive dressing area with Hammonds wardrobe and private ensuite
  • Bedroom 2 ideal for teenagers or guests with additional ensuite
  • Contemporary family bathroom with separate bath and shower plus your choice of tiling
  • Separate utility with access to WC, rear garden and integral garage
  • Double integral garage set on a block paved driveway
  • Council Tax: Please confirm the council tax band with Harron Homes
  • Tenure: Please confirm if this is a freehold or leasehold property with Harron Homes
Details added: 16/04/2026
Are we missing any purchase information? Click here to contact the developer

Floorplan Green-arrow

Floorplan:

Floorplan 900 3577546 1776315688

Map & Street view Green-arrow

Development Info Green-arrow

Victoria Heights

Gernhill Avenue
Fixby
West Yorkshire
HD2 2HR

View Full development

UP TO £25,750 DEPOSIT CONTRIBUTION*
Part Exchange available on selected homes*

 


Unlock exclusive savings with our Key Worker Scheme. Call our sales team today to find your perfect home.

 


Welcome to Victoria Heights, a prestigious collection of four- and five-bedroom homes in the picturesque suburb of Fixby.


Here, timeless design meets contemporary living. Surrounded by scenic countryside yet close to top-rated schools, local shops, and excellent transport links, life feels perfectly balanced.


Each home is thoughtfully crafted with elegant finishes, energy-efficient features, and modern comforts, creating a tranquil retreat in one of West Yorkshire’s most desirable locations.

Details added: 27/04/2022
Are we missing any purchase information? Click here to contact the developer

Mortgage Calculator Green-arrow


Disclaimer: The information contained in this site is for general guidance on matters of interest only and New Homes Place Limited holds no warranty for the accuracy of any development or property description or any linked or associated information. Computer generated images and photography are indicative and are intended for illustrative purposes only. They may not represent the actual furnishing and finishes of a property or development.
Spinner-transparent-turq