4 bedroom detached house
The stylish Windsor, a four bedroom detached home with integral garage offers the best in modern day living for families that want luxury and style.
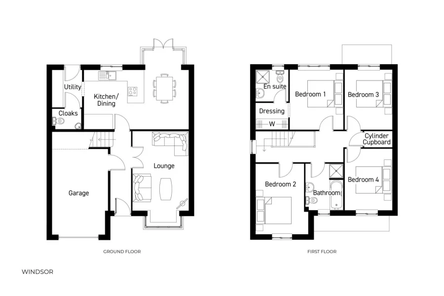
On entering this beautiful property there are stylish double doors that lead into a bright and spacious lounge, making it the ideal place to relax and unwind after a long day. The impressive, high specification kitchen with family dining area is at the rear of the property and overlooks the beautiful garden. The dining area benefits from classic double French doors leading out onto the garden and is perfect for entertaining on warm summer evenings. Catering for the busy, modern family, the utility room is accessed from the kitchen with a door leading out to the garden and a useful, separate downstairs cloakroom that maximises on space. The integral garage can be accessed from the hallway, making it ideal for storage.
Upstairs there are four well-proportioned bedrooms and a stylish family bathroom. The stunning master bedroom benefits from a sophisticated dressing area with en-suite shower room, creating a glamorous retreat in your own home.
- Four double bedroom home ideal for couples and families alike
- Spacious lounge with bay window and glazed panel double doors adding an extra touch of luxury to your home
- Contemporary open plan kitchen and dining area with French doors to the rear garden
- Master bedroom complete with your choice of modern Hammonds wardrobes and private ensuite
- Family bathroom complete with shower and bath
- Separate utility with access to guest WC
- 10 year NHBC warranty giving you peace of mind
- Single integral garage and double block paved driveway
- Energy efficent home saving you money on your energy bills
- Council Tax: Please confirm the council tax band with Harron Homes
- Tenure: Please confirm if this is a freehold or leasehold property with Harron Homes



















