New homes in Carlton, North Yorkshire

4 Qty-bedrooms
£380,000

Plot 100 - The Windsor, The Hawthornes, North Yorkshire, North Yorkshire, DN14 9NS

Spinner
Spinner

Property Details Green-arrow

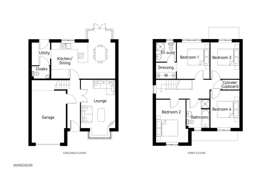
4 bedroom detached house

The stylish Windsor, a four bedroom detached home with integral garage offers the best in modern day living for families that want luxury and style.

On entering this beautiful property there are stylish double doors that lead into a bright and spacious lounge, making it the ideal place to relax and unwind after a long day. The impressive, high specification kitchen with family dining area is at the rear of the property and overlooks the beautiful garden. The dining area benefits from classic double French doors leading out onto the garden and is perfect for entertaining on warm summer evenings. Catering for the busy, modern family, the utility room is accessed from the kitchen with a door leading out to the garden and a useful, separate downstairs cloakroom that maximises on space. The integral garage can be accessed from the hallway, making it ideal for storage.

Upstairs there are four well-proportioned bedrooms and a stylish family bathroom. The stunning master bedroom benefits from a sophisticated dressing area with en-suite shower room, creating a glamorous retreat in your own home.

Property Features:
  • Four double bedroom home ideal for couples and families alike
  • Spacious lounge with bay window and glazed panel double doors adding an extra touch of luxury to your home
  • Contemporary open plan kitchen and dining area with French doors to the rear garden
  • Master bedroom complete with your choice of modern Hammonds wardrobes and private ensuite
  • Family bathroom complete with shower and bath
  • Separate utility with access to guest WC
  • 10 year NHBC warranty giving you peace of mind
  • Single integral garage and double block paved driveway
  • Energy efficent home saving you money on your energy bills
  • Council Tax: Please confirm the council tax band with Harron Homes
  • Tenure: Please confirm if this is a freehold or leasehold property with Harron Homes
Details added: 16/11/2025
Are we missing any purchase information? Click here to contact the developer

Floorplan Green-arrow

Floorplan:

Floorplan 900 3506386 1763269250

Map & Street view Green-arrow

Development Info Green-arrow

The Hawthornes

Station Road
Carlton
North Yorkshire
DN14 9NS

View Full development

WE’LL BUY YOURS, SO YOU CAN BUY OURS
MADE POSSIBLE WITH PART EXCHANGE!

Welcome to The Hawthornes, modern rural living in the heart of Carlton.


The Hawthornes is an exclusive development of three and four bedroom homes, offering the charm of village life with the convenience of nearby towns. Snaith is less than 5 minutes away and Selby just 15 minutes, giving residents easy access to traditional pubs, cosy tea rooms, and everyday amenities.


Nature lovers will enjoy days out at Carlton Towers or Barlow Common Nature Reserve, both only a short drive away and ideal for family walks and wildlife spotting.


Homes at The Hawthornes are thoughtfully designed to make the most of space, featuring light, airy living areas and generous surroundings. It’s the perfect place for professionals and families looking to put down roots in a peaceful yet well-connected setting.

Details added: 15/09/2020
Are we missing any purchase information? Click here to contact the developer

Mortgage Calculator Green-arrow


Disclaimer: The information contained in this site is for general guidance on matters of interest only and New Homes Place Limited holds no warranty for the accuracy of any development or property description or any linked or associated information. Computer generated images and photography are indicative and are intended for illustrative purposes only. They may not represent the actual furnishing and finishes of a property or development.
Spinner-transparent-turq