2 bedroom end terraced house
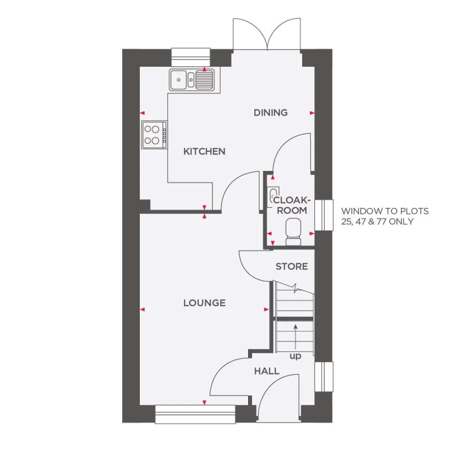
The Candlewood is a charming two bedroom home, offering a cosy and practical layout for modern living. On the ground floor, the open plan kitchen and dining area is perfect for enjoying meals together, with French doors leading out to the garden, bringing the outdoors in and making it ideal for entertaining. The separate lounge provides a comfortable space to relax and unwind after a busy day.
A convenient cloakroom and handy understairs cupboard are also located on the ground floor, offering practical storage solutions to keep the home clutter-free.
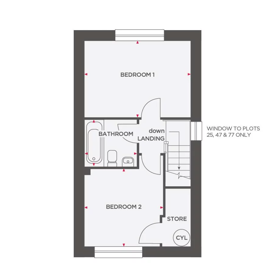
Upstairs, the first floor is home to two double bedrooms. The main bedroom offers a peaceful retreat, while bedroom two provides ample space, making it perfect for guests or as a home office. A modern family bathroom completes the upper floor, offering everything you need for everyday living.
With its well-designed spaces and thoughtful layout, The Candlewood is an ideal home for first-time buyers or those looking to downsize, offering comfort and flexibility throughout.
- Reserve for just £99 until 31/01/26
- End-terrace with two parking spaces
- All-inclusive specification
- Flooring, appliances and more included as standard
- French doors onto garden
- Two double bedrooms
- 2 years fixtures & fittings guarantee
- 10 year NHBC warranty
- Over 90% recommended by our customers
- Council Tax: Please confirm the council tax band with Wain Homes
- Tenure: Please confirm if this is a freehold or leasehold property with Wain Homes






















