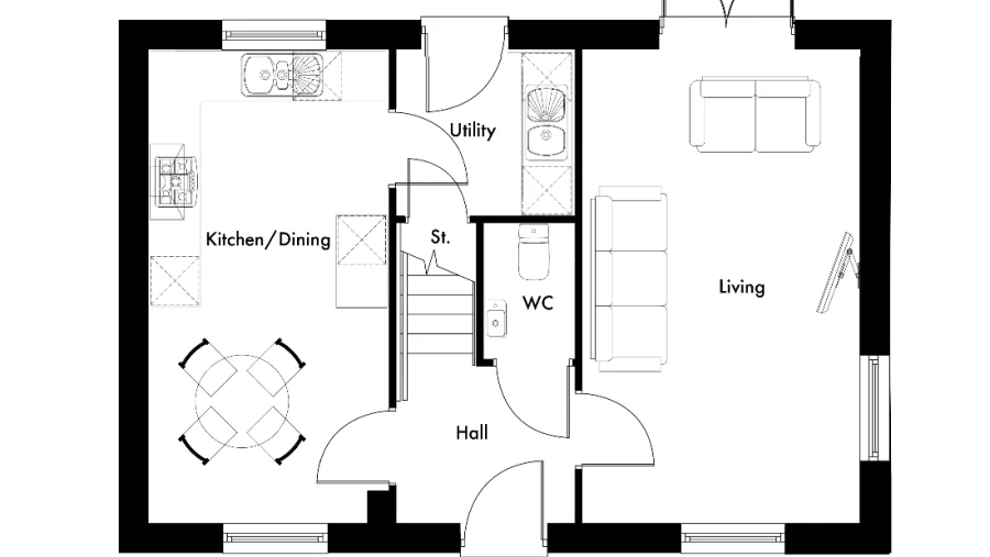
3 bedroom detached house
A standout family home on a detached corner plot with a large garden, offering open-plan living, a separate utility and a bright lounge with French doors to garden.


3 bedroom detached house
A standout family home on a detached corner plot with a large garden, offering open-plan living, a separate utility and a bright lounge with French doors to garden.






Set against the rolling backdrop of north Leicestershire’s countryside, Waltonbrook is a thoughtfully designed collection of 66 new homes in the peaceful village of Burton on the Wolds. Here, timeless rural charm meets modern-day comfort – creating a place where families of all shapes and sizes can grow, thrive and settle. Life at Waltonbrook means being part of something special – a warm and welcoming village where everything feels close, connected and full of possibility.
What’s here for you
66 beautifully crafted, energy-efficient new homes
Choice of spacious 1, 2, 3, 4 and 5-bedroom properties
Idyllic village setting with scenic walks and green space
Highly rated local primary school
Just 10 minutes from the vibrant town of Loughborough
