4 bedroom detached house
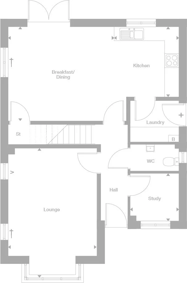
The bay window adds distinction to the lounge while the kitchen and dining room, with its stylish french doors, forms a natural family space. There is a separate laundry, a downstairs WC and a study, ideal for working from home. The superb gallery landing with a built-in storage cupboard, opens out to a family bathroom and four bedrooms, the principal bedroom is an en-suite. Externally you have a single garage and driveway parking as well as a private garden. This stunning four bedroom home is situated on Minerva Heights, new development by Miller Homes, a selection of 2, 3, 4 & 5 bedroom homes, coming soon to Chichester. This stunning development will offer you the best of both worlds, with the nearby South Downs National Park, perfect for a weekend walk and the bustling city centre less than 2 miles away. Minerva Heights will soon become a sought after community, with a medical centre, primary school & country park included in the plans. Get in touch today to find out more. Plot 1 Tenure: Freehold Length of lease: N/A Annual ground rent amount (£): N/A Ground rent review period (year/month): N/A Annual service charge amount (£): 293.22 Service charge review period (year/month): Yearly Council tax band (England, Wales and Scotland): F Reservation fee (£): 1000 For more information about the optional extras available in our new homes, please visit the Miller Homes website.
- Open-plan contemporary fitted kitchen/dining room with French doors to the rear garden
- 17ft dual aspect lounge bay window
- Useful laundry room with rear garden access
- Peaceful study, ideal for working from home
- En-suite shower room to prinicipal bedroom
- Garage and parking
- 10 year NHBC warranty
- 5 star builder (HBF). More than 90% of customers would recommend Miller Homes to their friends and family
- Our marketing suite is now open by appointment only. 7 days a week, 10:30am - 5:30pm.
- Council Tax: Please confirm the council tax band with Miller Homes
- Tenure: Please confirm if this is a freehold or leasehold property with Miller Homes























