2 bedroom end terraced house
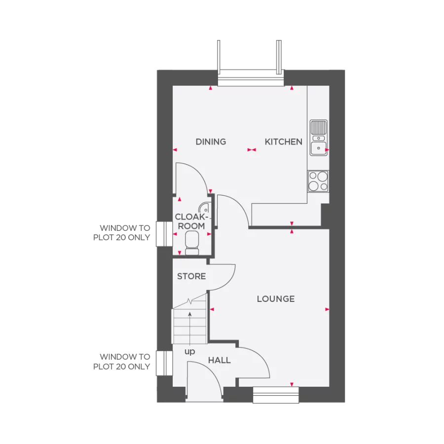
The Candlewood is a brilliant first home, offering you plenty of space to live just how you like it. Constructed to the highest specifications, the property is built with practicality at its heart. Off the hallway you’ll find a spacious lounge, with plenty of room for the whole family to relax after a busy day. Understairs storage can be accessed via your lounge, for all those coats and shoes to be kept tidy.
Following on from the lounge, is an open plan kitchen/dining room. This open plan layout makes spending time with the family easy. You can keep a watchful eye on homework duties, while catching up over a cuppa with friends and family. You’ll also find access to your garden through a set of Bi-fold doors, creating a light, bright and airy home. The downstairs cloakroom is a great addition, especially when you have guests.
The first floor is home to two good sized bedrooms and a family bathroom with shower over the bath. The main bedroom will come with a fitted wardrobe as standard making use of all of the space. Whilst bedroom 2 has 2 handy storage cupboards built in.
- £99 to reserve by 28/02/16
- End of terrace with private parking
- All-inclusive specification
- Private garden
- Electric Car charging unit
- Air Source Heat pump
- Council Tax: Please confirm the council tax band with Wain Homes
- Tenure: Please confirm if this is a freehold or leasehold property with Wain Homes



















