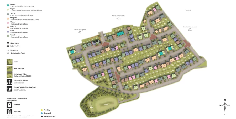
Lennox Gardens
Glenboig
Coatbridge
ML5 2TY
Lennox Gardens will soon be a brand-new development offering the perfect blend of contemporary, energy-efficient living. Our homes will also feature spacious layouts, private gardens and family-friendly green-spaces, ideal for those looking to join a brand-new community. Your new home will sit on the edge of the stunning greenery, whilst being only a 20 minute drive from Glasgow’s city centre.



























