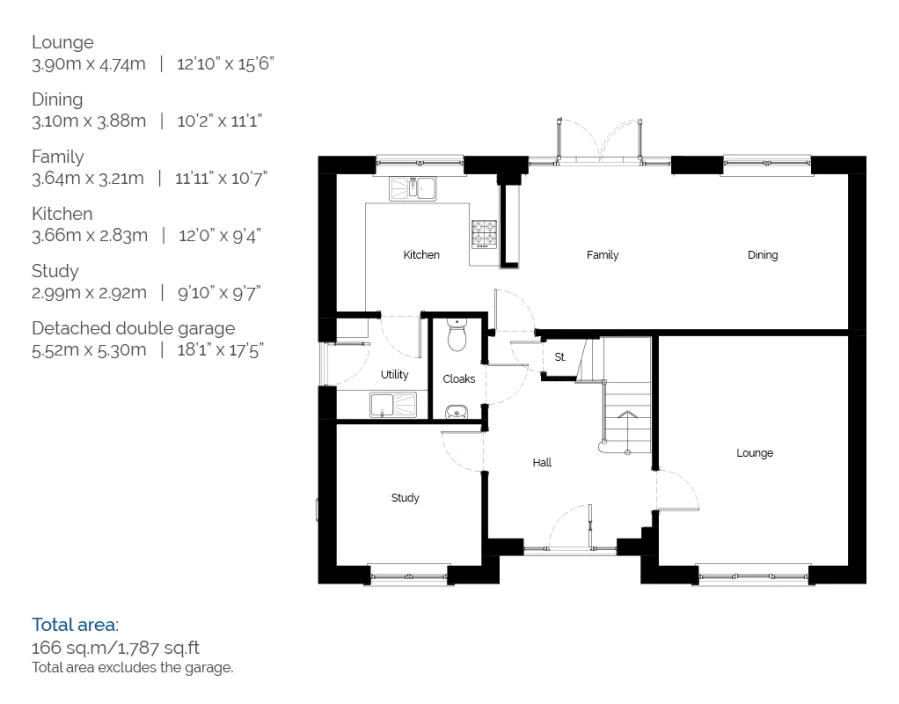
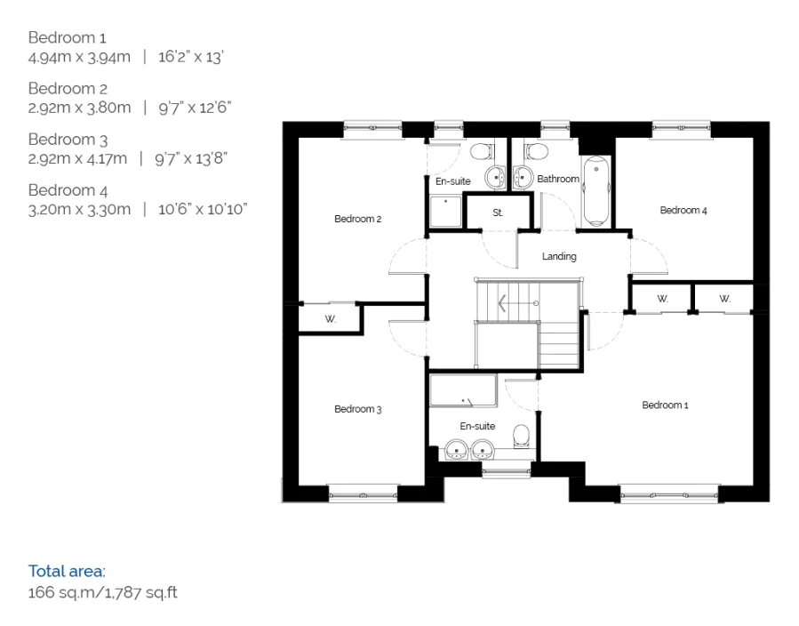
4 bedroom detached house
This stunning family home has four large bedrooms and three bathrooms, a spacious entrance hall with storage and WC. The Learmonth2 includes a separate lounge, study, utility and open plan kitchen/family/dining area with French doors leading to the rear garden. Upstairs has 4 sizeable bedrooms with en-suites to bedroom 1 and 2.
Property Features:
Details added: 22/10/2025
Are we missing any purchase information? Click here to contact the developer













